Prix
509 900€
509 900€
Type
Appt. au 0-RDC
Appt. au 0-RDC
Pièces
T4
T4
Surface
80.53 m²
80.53 m²
Exposition
-
-
Ville
Cessy (01170)
Cessy (01170)
Livraison
4ème trimestre 2026
4ème trimestre 2026
Informations
01 81 80 39 10
01 81 80 39 10
Présentation du programme "LES VILLAS SEYSSIA"
La résidence LES VILLAS SEYSSIA s'implante dans un quartier calme et résidentiel, à proximité du centre-ville avec ses commerces, ses écoles , et ses montagnes avoisinantes.
Elle s’intègre parfaitement dans son environnement, avec son architecture inspirée des constructions voisines et ses façades issues du nuancier du Pays de Gex, beige clair et beige foncé.
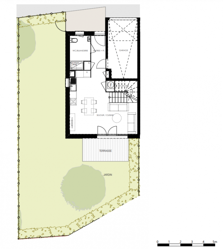
Le projet se compose de 29 logements : 19 villas T4 et T5 duplex avec garage, et 10 appartements.
Toutes les villas profitent d'un jardin privatif bénéficiant des meilleures orientations pour profiter de belles journées ensoleillées.

