467 000€
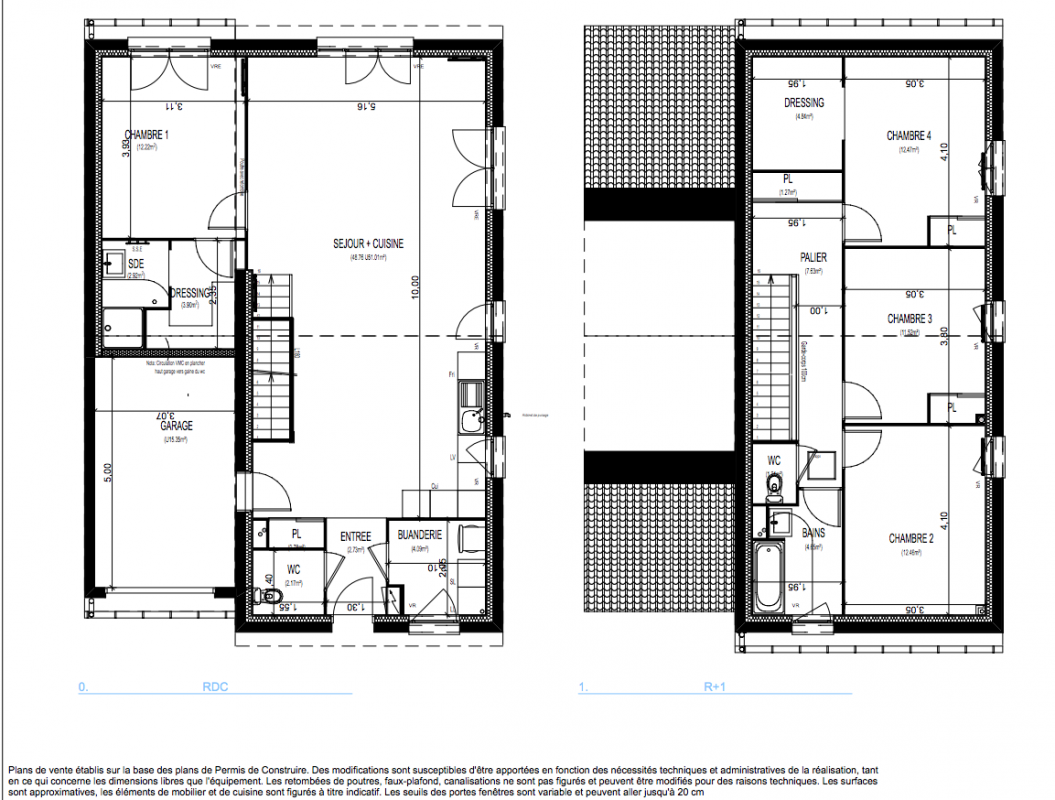
Maison au 0-RDC
T5
133.65 m²
-
Niévroz (01120)
1er trimestre 2028
01 81 80 39 10
Présentation du programme "LE CLOS DUNANT"
GRAND LANCEMENT À NIEVROZ LES 27 ET 28 FEVRIER ! RENCONTREZ-NOUS À L’HÔTEL BEST WESTERN BRIDGE, ROUTE DU PONT À JONS DE 9H À 19H
A 30 MINUTES* DU CŒUR DE LYON, VOTRE MAISON INDIVIDUELLE 4 PIECES AVEC GRAND JARDIN A NIEVROZ A MOINS DE 340 000 € ET A 1612,50 €/MOIS**
PRIX DE LANCEMENT : JUSQU'A 25 000 € DE REMISE POUR LES 7 PREMIERS RESERVATAIRES** (Les prix affichés comprennent la remise)
Grâce au Prêt à Taux Zéro , augmentez votre capacité d’achat en bénéficiant d’un emprunt à taux 0 % pouvant atteindre jusqu’à 79 200€ soit maximum 30 % de l’achat d’une maison.
Située rue Henri Dunant, cette nouvelle adresse bénéficie d’un emplacement idéal, à seulement 6 minutes* de l’autoroute A42, permettant de rejoindre facilement Lyon en 30 minutes*. Bordée par le Rhône, Niévroz séduit par son cadre naturel exceptionnel, propice aux promenades, aux balades à vélo et aux activités de plein air. Son engagement en faveur d’un cadre de vie soigné et harmonieux est récompensé par le label "Villes et Villages Fleuris". *. La ville de Niévroz est un choix idéal pour les familles et les seniors souhaitant conjuguer confort du neuf et accessibilité, tout en profitant d’un environnement paisible et verdoyant.
DES MAISONS ELEGANTES ET CONFORTABLES, PENSEES POUR TOUS LES STYLES DE VIE
Fort de son expertise de plus de 50 ans et pionnier dans la réalisation de maisons individuelles inspirées du style de vie à l’américaine, European Homes réinvente une fois de plus la qualité de vie à Niévroz.
« LE CLOS DUNANT » propose 36 maisons lumineuses de 4 et 5 pièces, déclinées en 5 modèles allant de 90 m2 à 150 m2. Disponibles en plain-pied ou semi-plain-pied, ces habitations s’adaptent à tous les styles de vie et séduiront particulièrement les familles comme les seniors en quête de confort et de praticité. Chaque maison bénéficie d’un garage attenant, d’un parking extérieur et d’un vaste jardin privatif engazonné et clôturé, véritables écrins de verdure où il fait bon se détendre. L’ensemble répond aux dernières normes environnementales RE 2020, assurant une performance énergétique optimale et une consommation maîtrisée.
UN CADRE DE VIE IDEAL POUR TOUTE LA FAMILLE
« LE CLOS DUNANT » bénéficie d’un emplacement privilégié, à proximité immédiate des infrastructures essentielles. Les jeunes parents apprécieront la micro-crèche accessible en 10 minutes** à pied, tandis que l’école maternelle et primaire Victor Duruy se trouve à seulement 5 minutes**. Pour les plus grands, le collège S
Autres logements T5 du programme "LE CLOS DUNANT"
| Disponibilité | Prix | No | Genre | Pièces | Surface | Étage | Disponibilité | Prix | ||
|---|---|---|---|---|---|---|---|---|---|---|
| Voir | Disponible | 516 000€ | M002 | Maison | T5 | 148.38m2 Le bon plan | 0-RDC | Disponible | 516 000€ | Voir |
| Voir | Disponible | 545 000€ | M003 | Maison | T5 | 148.38m2 | 0-RDC | Disponible | 545 000€ | Voir |
| Voir | Disponible | 477 000€ | M032 | Maison | T5 | 133.65m2 | 0-RDC | Disponible | 477 000€ | Voir |
| Voir | Disponible | 486 000€ | M035 | Maison | T5 | 133.65m2 | 0-RDC | Disponible | 486 000€ | Voir |
| Voir | Disponible | 493 000€ | M036 | Maison | T5 | 133.65m2 | 0-RDC | Disponible | 493 000€ | Voir |