Prix
300 000€
300 000€
Type
Appt. au 0-RDC
Appt. au 0-RDC
Pièces
T2
T2
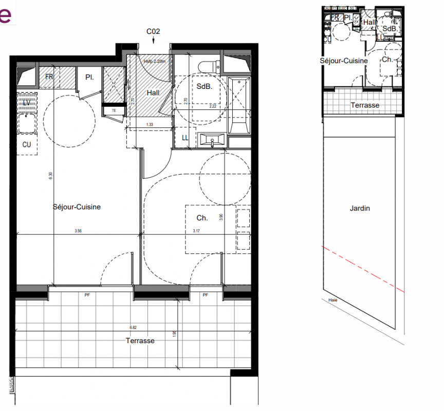
Surface
42.75 m²
42.75 m²
Exposition
-
-
Ville
Saint-Genis-Pouilly (01630)
Saint-Genis-Pouilly (01630)
Livraison
1er trimestre 2027
1er trimestre 2027
Informations
01 81 80 39 10
01 81 80 39 10
Présentation du programme "OSMOSE"
Autres logements T2 du programme "OSMOSE"
| Disponibilité | Prix | No | Genre | Pièces | Surface | Étage | Disponibilité | Prix | ||
|---|---|---|---|---|---|---|---|---|---|---|
| Voir | Disponible | 310 000€ | B1-A01 | Appt. | T2 | 44.3m2 | 0-RDC | Disponible | 310 000€ | Voir |
| Voir | Disponible | 304 000€ | B1-A02 | Appt. | T2 | 43.5m2 | 0-RDC | Disponible | 304 000€ | Voir |
| Voir | Disponible | 285 000€ | B1-A11 | Appt. | T2 | 44.3m2 | 1er | Disponible | 285 000€ | Voir |
| Voir | Optionné | 279 000€ | B1-C12 | Appt. | T2 | 42.85m2 | 1er | Optionné Mais pas encore vendu 😉 | 279 000€ | Voir |
| Voir | Optionné | 310 000€ | B1-C13 | Appt. | T2 | 48.05m2 | 1er | Optionné Mais pas encore vendu 😉 | 310 000€ | Voir |