Prix
335 000€
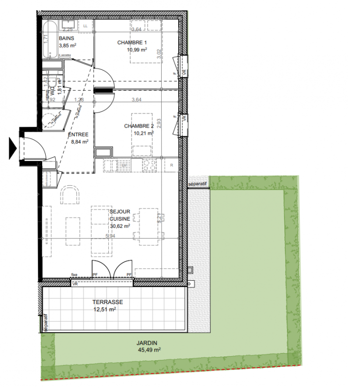
Type
Appt. au 1er
Pièces
T3
Surface
65.82 m²
Exposition
-
Ville
Brenthonne (74890)
Livraison
4ème trimestre 2026
Informations
01 81 80 39 10

Présentation du programme "L'Orée"

Prochainement, 6 maisons 5P avec jardins et 16 appartements du 2 au 5P.

Autres logements T3 du programme "L'Orée"

Disponibilité Prix Genre Pièces Surface Étage
Voir
Disponible
314 500€ Appt. T3 64.17m2 1er