314 890€
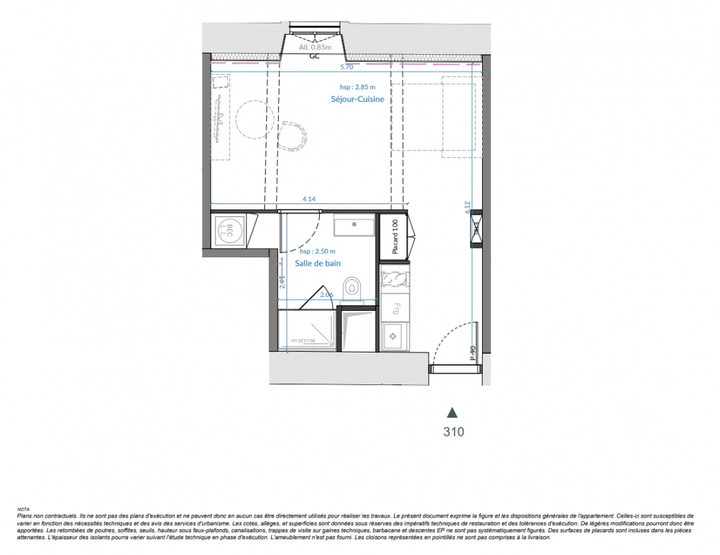
Appt. au 2ème
Studio
30.2 m²
Nord
Contamine-sur-Arve (74130)
3ème trimestre 2026
01 81 80 39 10
Présentation du programme "Contamines Grande Maison"
Un territoire stratégique et dynamique au cœur du Grand GenèveContamine‑sur‑Arve bénéficie d’un positionnement privilégié au sein de l’aire d’attraction du Grand Genève, à seulement 25 minutes de la ville suisse, pôle économique, financier et diplomatique majeur en Europe. Cette proximité immédiate avec un bassin d’emplois hautement qualifiés génère une forte demande résidentielle et attire de nombreux actifs frontaliers, renforçant la valeur immobilière du secteur. À 30 minutes d’Annecy, dont l’attractivité touristique et économique rayonne bien au‑delà de la région, la commune se situe au cœur d’un axe transfrontalier particulièrement recherché.Cet ancrage géographique s’appuie sur une accessibilité optimale grâce à l’autoroute et à la connexion rapide avec la Suisse et les stations alpines. Contamine‑sur‑Arve profite également de la vitalité économique de la vallée de l’Arve, marquée par les industries de précision, l’horlogerie, la métallurgie et un réseau d’entreprises innovantes. Le Centre Hospitalier Alpes Léman, premier employeur du nord de la Haute‑Savoie, contribue à la stabilité de l’emploi et crée une demande locative importante.L’ensemble forme un territoire dynamique et attractif, où le mélange entre ouverture internationale, qualité de vie et potentiel économique offre un cadre particulièrement favorable aux investissements patrimoniaux.Un édifice classé, reflet de plusieurs siècles d’histoireLa Grande Maison, ancien prieuré clunisien puis établissement religieux au XVIIᵉ siècle sous les Barnabites, a traversé les siècles en s’adaptant aux évolutions de la région, notamment lors de son extension au XIXᵉ siècle. Son architecture, mêlant sobriété monastique et élégance classique, ainsi que son jardin attenant, en font aujourd’hui un ensemble patrimonial rare. Inscrit au titre des Monuments Historiques depuis 2025 et située en co‑visibilité avec l’église Saint‑Foy, en cours d’inscription à l’UNESCO, elle occupe une place centrale dans l’histoire de Contamine‑sur‑Arve.La restauration menée par Nouveau Siècle Rénovation s’inscrit dans la continuité de cette histoire : elle préservera les éléments essentiels du bâti tout en offrant un usage résidentiel raffiné, conciliant respect du patrimoine et confort contemporain. Ce projet constitue une opportunité rare pour les investisseurs souhaitant participer à la valorisation durable d’un édifice d’exception au sein d’un territoire dynamique. Un territoire naturel, culturel et touristique d’une grande r
Autres logements Studio du programme "Contamines Grande Maison"
| Disponibilité | Prix | No | Genre | Pièces | Surface | Étage | Disponibilité | Prix | ||
|---|---|---|---|---|---|---|---|---|---|---|
| Voir | Disponible | 388 966€ | 103 | Appt. | Studio | 38.3m2 | 0-RDC | Disponible | 388 966€ | Voir |
| Voir | Disponible | 414 749€ | 102 | Appt. | Studio | 41.2m2 | 0-RDC | Disponible | 414 749€ | Voir |
| Voir | Disponible | 247 604€ | 108 | Appt. | Studio | 25.4m2 | 0-RDC | Disponible | 247 604€ | Voir |
| Voir | Disponible | 319 370€ | 107 | Appt. | Studio | 31.2m2 | 0-RDC | Disponible | 319 370€ | Voir |
| Voir | Disponible | 347 389€ | 110 | Appt. | Studio | 33.4m2 | 0-RDC | Disponible | 347 389€ | Voir |
| Voir | Disponible | 297 893€ | 202 | Appt. | Studio | 28.4m2 | 1er | Disponible | 297 893€ | Voir |
| Voir | Disponible | 392 385€ | 204 | Appt. | Studio | 37.7m2 | 1er | Disponible | 392 385€ | Voir |
| Voir | Disponible | 327 882€ | 205 | Appt. | Studio | 31.2m2 | 1er | Disponible | 327 882€ | Voir |
| Voir | Disponible | 306 441€ | 207 | Appt. | Studio | 29.2m2 | 1er | Disponible | 306 441€ | Voir |
| Voir | Disponible | 276 819€ | 208 | Appt. | Studio | 27.9m2 | 1er | Disponible | 276 819€ | Voir |
| Voir | Disponible | 290 147€ | 209 | Appt. | Studio | 27.7m2 | 1er | Disponible | 290 147€ | Voir |
| Voir | Disponible | 323 155€ | 211 | Appt. | Studio | 30.5m2 | 1er | Disponible | 323 155€ | Voir |
| Voir | Disponible | 315 128€ | 210 | Appt. | Studio | 30.3m2 | 1er | Disponible | 315 128€ | Voir |
| Voir | Disponible | 361 423€ | 212 | Appt. | Studio | 34.3m2 | 1er | Disponible | 361 423€ | Voir |
| Voir | Disponible | 405 921€ | 302 | Appt. | Studio | 38.6m2 | 2ème | Disponible | 405 921€ | Voir |
| Voir | Disponible | 390 348€ | 304 | Appt. | Studio | 37.4m2 | 2ème | Disponible | 390 348€ | Voir |
| Voir | Disponible | 294 788€ | 308 | Appt. | Studio | 28.3m2 | 2ème | Disponible | 294 788€ | Voir |
| Voir | Disponible | 348 517€ | 305 | Appt. | Studio | 33.1m2 | 2ème | Disponible | 348 517€ | Voir |
| Voir | Disponible | 305 718€ | 307 | Appt. | Studio | 29.2m2 | 2ème | Disponible | 305 718€ | Voir |
| Voir | Disponible | 297 479€ | 309 | Appt. | Studio | 28.5m2 | 2ème | Disponible | 297 479€ | Voir |
| Voir | Disponible | 353 305€ | 402 | Appt. | Studio | 33.9m2 | 3ème | Disponible | 353 305€ | Voir |
| Voir | Disponible | 270 310€ | 404 | Appt. | Studio | 27.8m2 | 3ème | Disponible | 270 310€ | Voir |
| Voir | Disponible | 303 981€ | 406 | Appt. | Studio | 30m2 | 3ème | Disponible | 303 981€ | Voir |
| Voir | Disponible | 268 757€ | 408 | Appt. | Studio | 27.5m2 | 3ème | Disponible | 268 757€ | Voir |