Prix
130 218€
Type
Appt. au 3ème
Pièces
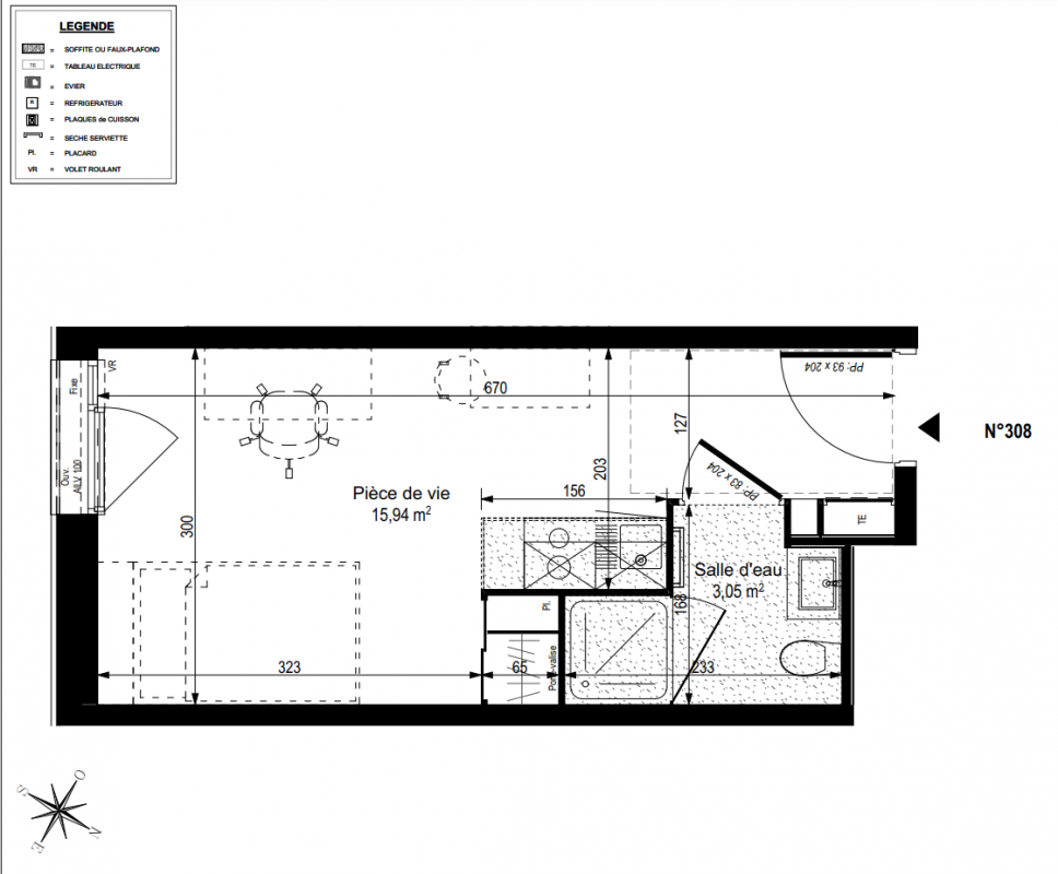
Studio
Surface
18.99 m²
Exposition
Sud
Ville
Gières (38610)
Livraison
2ème trimestre 2026
Informations
01 81 80 39 10

Présentation du programme "GIÈRES STUDENT FACTORY"

IDEAL INVESTISSEUR : Résidence Etudiants à GIERES.Bénéficiez d’une fiscalité avantageuse avec le statut LMNP.Le statut de Loueur en Meublé Non Professionnel vous permet de bénéficier de nombreux avantages fiscaux. Avec le dispositif LMNP Classique, vous bénéficiez de loyers peu ou pas fiscalisés, et bonne nouvelle vous récupérez la TVA de 20%. Demandez une étude personnalisée dès maintenant.Située dans le département de l’Isère, Gières profite d’une situation idéale, accueillant une grande partie du campus universitaire grenoblois.Avec 3 universités, l’Institut Polytechnique de Grenoble, Sciences PO ainsi que de nombreuses unités de recherches, le campus de Grenoble voit passer chaque année plus de 50 000 étudiants.Student Factory avec une adresse 6-8 rue de la Condamine, se trouve au cœur d’un réseau multimodal dense et diversifié. A pied, en bus, en tramway, en vélo, les universités et le centre de Grenoble sont accessibles en quelques minutes.La nouvelle résidence étudiants propose des appartements entièrement équipés et « prêts à vivre », mais aussi des espaces communs adaptés aux études et de nombreux services pour répondre aux nouveaux modes de vie des étudiants.

Autres logements Studio du programme "GIÈRES STUDENT FACTORY"

Pas de logements disponibles