Ce lot n’est plus disponible chez VIANOVA ou est vendu.

Vous pouvez revenir dans 24h pour vérifier le stock à jour ou contacter un conseiller Vianova pour vérifier le stock en direct.
Vous pouvez également continuer votre recherche sur notre site « ici ».

Prix
489 000€  (TVA 20%)
448 250€  (TVA 10%)
Type
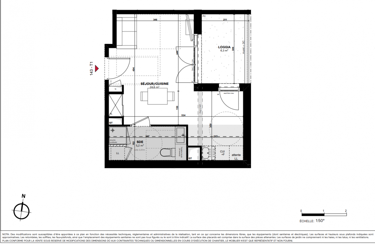
Appt. au 5ème
Pièces
T5
Surface
114 m²
Exposition
-
Ville
Villefranche-sur-Saône (69400)
Livraison
2ème trimestre 2027
Informations
01 81 80 39 10

Présentation du programme "Prélude"

A tout juste 30 minutes de Lyon, plongez dans l'atmosphère unique de la capitale du Beaujolais tout en profitant d'un cadre de vie verdoyant et dynamique. Ici, la modernité rencontre la nature : profitez d'un environnement verdoyant et plein de vie, tout en restant connecté à l'effervescence urbaine. Découvrez des logements spacieux et confortables du studio bien pensé au 5 pièces. Certains appartements ont une grande terrasse vous permettant de profiter des beaux jours. Pour votre confort, les appartements vous sont proposés avec un box privatif sécurisé en sous-sol. Au sein de la résidence, un coeur d'îlot végétalisé vous attend pour des moments de détente dans un cadre paisible. Venez découvrir un lieu où il fait bon vivre, une invitation au bien-être au quotidien. Pour toutes informations complémentaires, prenez contact avec nous !

Autres logements T5 du programme "Prélude"

Pas de logements disponibles