Prix
110 600€
Type
Appt. au 3ème
Pièces
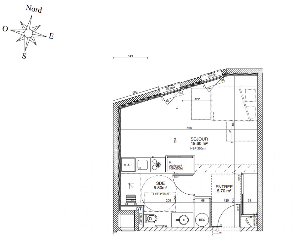
Studio
Surface
30.3 m²
Exposition
Nord
Ville
Saint-Brieuc (22000)
Livraison
1er trimestre 2025
Informations
01 81 80 39 10

Présentation du programme "Résidence Services Seniors Les Jardins D'arcadie Saint-brieuc"

Descriptif résidenceUn cadre de vie agréable et animéLa résidence bénéficie d’une position idéale au cœur du centre-ville, permettant aux résidents de profiter pleinement de la vie briochine.Elle se situe :À deux pas du cœur historique, animé toute l’année.Au sein de l’îlot de la Providence, un lieu emblématique et rénové, apprécié pour son ambiance conviviale.Saint-Brieuc est une ville reconnue pour :Son dynamisme culturel : musée, théâtre, patrimoine historique. Ses espaces naturels à proximité (mer et vallées), offrant de nombreuses balades et activités douces. AccessibilitéLa résidence dispose d’une accessibilité remarquable :Gare routière et gare SNCF à 600 m, soit environ 5 à 7 min à pied. Transports en commun facilement accessibles depuis le centre¿ville. Elle propose également un service interne facilitant les déplacements :Navette de la résidence, utile pour les sorties collectives ou les déplacements individuels. La localisation centrale permet aux résidents de se déplacer aisément à pied, en restant proches de tous les points d'intérêt essentiels Centres d’intérêt à proximitéCommerces & servicesCentre commercial Les Champs (250 m) Marché local (50 m)Nombreux services publics et commerces du centre¿villeBureaux de poste, banques, pharmacies, cafés, restaurants (moins de 500 m) Culture & loisirsThéâtre de Saint-Brieuc (à proximité) Musée d’art et d’histoire (proche du centre) Bibliothèque, espaces culturels et animations régulièresParc des Promenades pour les balades en plein air (moins de 500 m)Santé & bien¿êtreCabinets médicaux et paramédicaux à proximité immédiateAccès facile aux pôles de santé du centre¿villeDescriptif gestionnaireDepuis 2006, le groupe ACAPACE, via la marque “Les Jardins d’Arcadie” développe des Résidences Services destinées aux séniors autonomes et semi-autonomes. Le confort, les services et les activités proposés permettent d’entretenir l’autonomie et la sérénité indispensables au bien-vieillir.Avec plus de 80 résidences en gestion en 2024 et plus de 40 projets en cours de montage, de construction ou de commercialisation, « Les Jardins d’Arcadie » s’impose comme l’un des leaders dans ce secteur de la résidence services pour nos ainés. Le partenariat signé en 2014 avec le groupe Bouygues Immobilier s’inscrit sur le long terme et a pour objectifs de consolider le développement de la marque partout en France, en livrant dix à douze nouvelles résidences par an, soit entre 1 000 et 1 200 nouveaux logements. Les Jardins...

Autres logements Studio du programme "Résidence Services Seniors Les Jardins D'arcadie Saint-brieuc"

Pas de logements disponibles
DO NOT CLICK