Prix
332 000€
Type
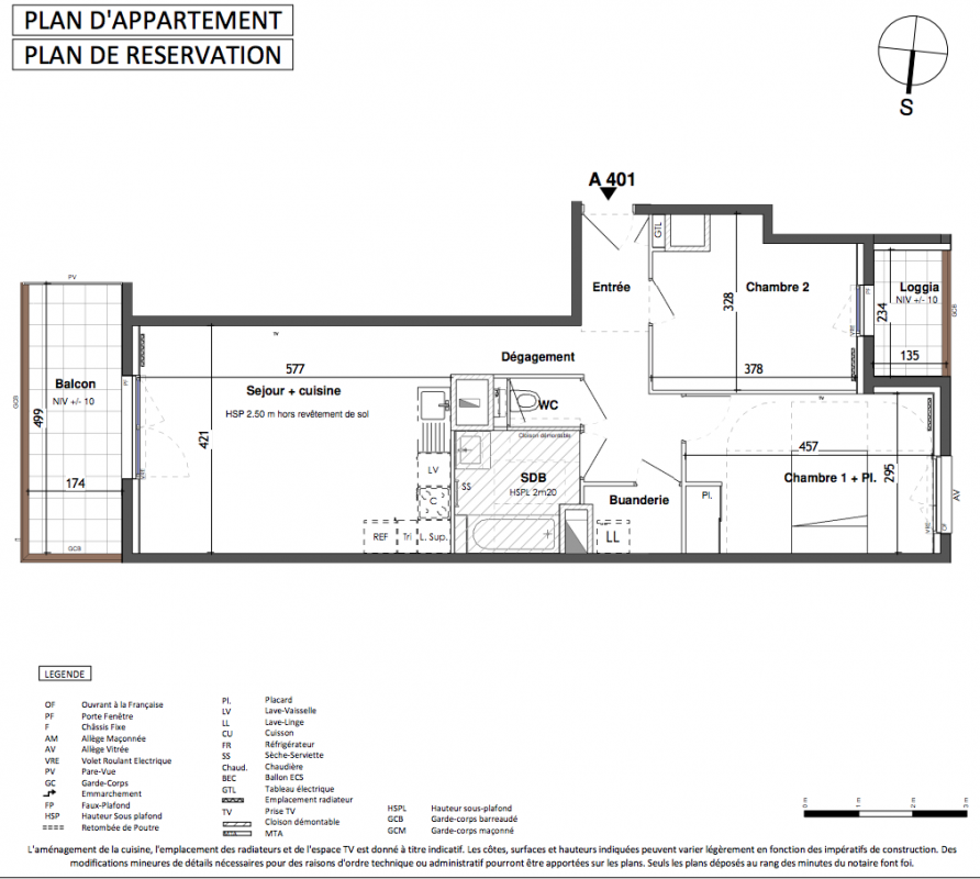
Appt. au 4ème
Pièces
T3
Surface
66.08 m²
Exposition
-
Ville
Rennes (35000)
Livraison
4ème trimestre 2025
Informations
01 81 80 39 10

Présentation du programme "AROMATIQUE"

Réalisez un investissement locatif ou une première acquisition à Rennes
Métropole dynamique, symbole du bien vivre, Rennes offre une véritable opportunité d'un bon placement patrimonial.
// Plus grand pôle d’enseignement supérieur de l’Ouest
// Une des meilleures métropoles françaises en terme de qualité de vie
//Paris à seulement 1h25 avec la LGV
// Un marché du travail très dynamique
//Grande richesse culturelle
// Très bon maillage territorial
+ pictos

Un cadre de vie paisible en ville
Accueillant et vivant avec ses commerces de plus en plus nombreux, son grand parc de plus de 4 hectares au bord de l'eau, ses connexions avec le cœur de ville.
//A 10 minutes à vélo de la place de la Mairie
//A 5 minutes en voiture de l'hyper centre et de la gare LGV
//Ligne de bus Stard n°64, , C6, C4 (liaisons Métro Lignes A et B)
//Voies douces - piétons et vélos - vers le centre-ville
//Technopole Atalante et campus Beaulieu à 5 minutes
//Zone commerciale de Cesson-Sévigné à 10 minutes
//Commerces de proximité, restaurants et moyenne surface alimentaire
//Pharmacie et maison médicale
//Marché des producteurs tous les vendredis soirs
//Crèche et groupe scolaire (2023)
//Espaces de promenade, parc, plage et activités nautique
//Chemins piétonniers et passerelles

Une vie citadine douce et vitaminée
AROMATIQUE signe 26 appartements du 2 au 4 pièces.
Sur le toit, une grande terrasse avec des bacs plantés, une serre et une salle offrent aux habitants un lieu à partager avec vue sur la ville.
//Belles expositions
//Terrasse, balcon, jardinet*
//Stationnements privatifs pour tous les logements
//Locaux vélos équipés
//Prestations de qualité

Des appartements
Volumes des pièces, conception de qualité et aménagements soignés.
//Revêtement de sol stratifié hors pièces humides
//Portes intérieures laquées blanches
//Cloisons en ossature métallique de 72 mm
//Salle de bains et salle d'eau avec faïence au droit des douches et des baignoires
//Meuble vasque avec tiroirs de grande profondeur
//Grande douche avec pare-douche
//WC suspendu
//Porte palière de la marque Huet avec serrure 3 points
//Volets roulantes électriques dans toutes les pièces
//Stationnement en extérieur et sous-sol avec commande par accès motorisée et sécurisée
//Locaux vélos équipés et sécurisés
//Vidéophone pour contrôle d'accès
//Cadre de vie végétalisé
//Toit terrasse et serre partagés

Réaliser un investissement locatif à Rennes
Ce programme neuf est éligible au dispositif Pinel* et vous offre l’opportun

Autres logements T3 du programme "AROMATIQUE"

Disponibilité Prix Genre Pièces Surface Étage
Voir
Disponible
327 000€ Appt. T3 65.92m2 3ème
DO NOT CLICK