Ce lot n’est plus disponible chez VIANOVA ou est vendu.
 Vous pouvez revenir dans 24h pour vérifier le stock à jour ou contacter un conseiller Vianova pour vérifier le stock en direct.
 Vous pouvez également continuer votre recherche sur notre site « ici ». 
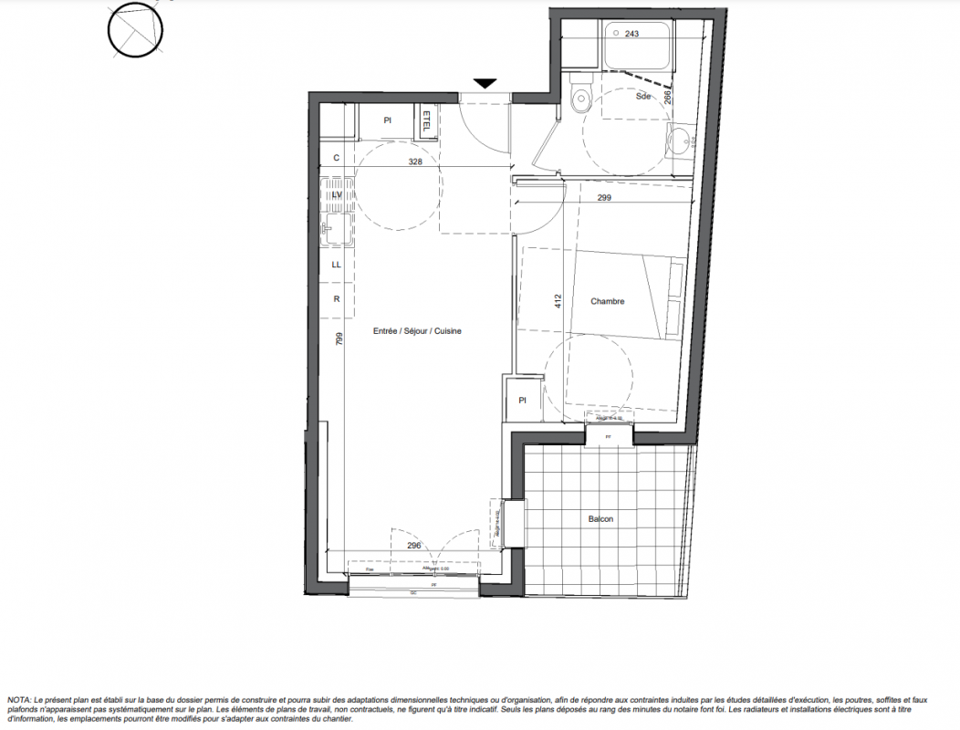
142 999€
Appt. au 2ème
T2
42 m²
Sud-Est
Bourges (18000)
1er trimestre 2028
01 81 80 39 10
Présentation du programme "Le Clos d'Auron"
Découvrez une nouvelle résidence Le Clos d'Auron à Bourges pensée pour vous offrir bien plus qu'un logement : un véritable cadre de vie. Du studio cosy au spacieux 4 pièces, chaque appartement a été conçu pour allier confort, économies d'énergie et qualité de vie. Ascenseur, local vélos, parkings privatifs Tout est là pour simplifier votre quotidien. Étudiants, jeunes actifs, seniors : chacun y trouve sa place. Et pour les plus âgés, un pack 'confort' en option permet d'adapter le logement pour un maintien à domicile en toute sérénité. Vivre ici, c'est choisir la tranquillité d'un quartier agréable, tout en restant proche des commodités et du coeur de Bourges. C'est aussi faire le choix d'un habitat durable, conforme aux dernières normes de construction. Acheter du neuf, c'est bénéficier de nombreux avantages : un logement personnalisable, des garanties constructeur qui vous protègent pendant plusieurs années, des frais de notaire réduits, et pour votre 1er achat, la possibilité de financer une partie de votre bien grâce au prêt à taux zéro ! Pour toutes informations complémentaires, prenez contact avec nous !
Autres logements T2 du programme "Le Clos d'Auron"
| Disponibilité | Prix | No | Genre | Pièces | Surface | Étage | Disponibilité | Prix | ||
|---|---|---|---|---|---|---|---|---|---|---|
| Voir | Optionné  |  145 999€ | 1409 | Appt. | T2 | 40m2 | 4ème |   Optionné  Mais pas encore vendu 😉   |  145 999€ | Voir | 
| Voir | Optionné  |  145 000€ | 1407 | Appt. | T2 | 42m2 | 4ème |   Optionné  Mais pas encore vendu 😉   |  145 000€ | Voir | 
| Voir | Disponible  |  141 000€ | 1405 | Appt. | T2 | 39m2 | 4ème |   Disponible   |  141 000€ | Voir | 
| Voir | Disponible  |  141 000€ | 1404 | Appt. | T2 | 39m2 | 4ème |   Disponible   |  141 000€ | Voir | 
| Voir | Disponible  |  142 999€ | 1209 | Appt. | T2 | 41m2 | 2ème |   Disponible   |  142 999€ | Voir | 
| Voir | Disponible  |  142 000€ | 1212 | Appt. | T2 | 43m2 | 2ème |   Disponible   |  142 000€ | Voir | 
| Voir | Disponible  |  141 000€ | 1108 | Appt. | T2 | 41m2 | 1er |   Disponible   |  141 000€ | Voir | 
| Voir | Disponible  |  141 000€ | 1207 | Appt. | T2 | 42m2 | 2ème |   Disponible   |  141 000€ | Voir | 
| Voir | Optionné  |  136 999€ | 1408 | Appt. | T2 | 39m2 | 4ème |   Optionné  Mais pas encore vendu 😉   |  136 999€ | Voir | 
| Voir | Disponible  |  139 000€ | 1312 | Appt. | T2 | 42m2 | 3ème |   Disponible   |  139 000€ | Voir | 
| Voir | Disponible  |  138 000€ | 1201 | Appt. | T2 | 41m2 | 2ème |   Disponible   |  138 000€ | Voir | 
| Voir | Disponible  |  132 000€ | 1412 | Appt. | T2 | 38m2 | 4ème |   Disponible   |  132 000€ | Voir | 
| Voir | Disponible  |  132 000€ | 1313 | Appt. | T2 | 39m2 | 3ème |   Disponible   |  132 000€ | Voir | 
| Voir | Disponible  |  135 000€ | 1112 | Appt. | T2 | 42m2 | 1er |   Disponible   |  135 000€ | Voir | 
| Voir | Disponible  |  130 999€ | 1214 | Appt. | T2 | 39m2 | 2ème |   Disponible   |  130 999€ | Voir | 
| Voir | Optionné  |  127 999€ | 1113 | Appt. | T2 | 39m2 | 1er |   Optionné  Mais pas encore vendu 😉   |  127 999€ | Voir |