Prix
109 000€
Type
Appt. au 2ème
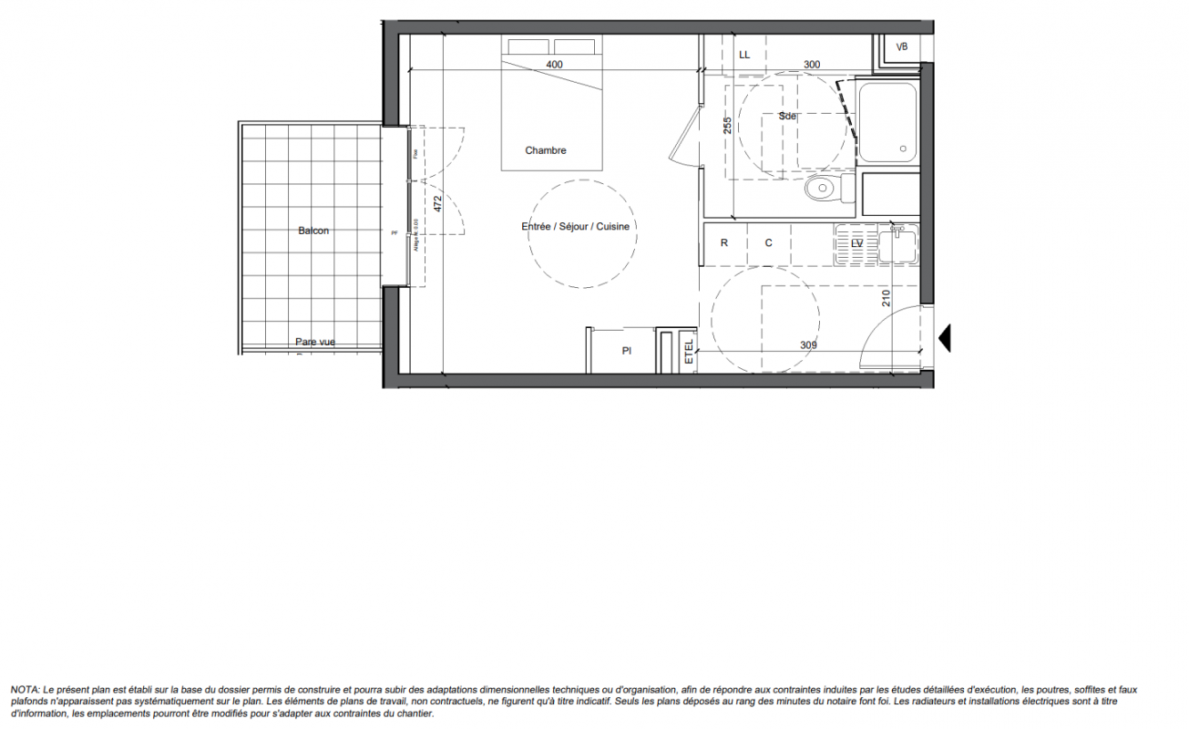
Pièces
Studio
Surface
31 m²
Exposition
Sud-Ouest
Ville
Bourges (18000)
Livraison
1er trimestre 2028
Informations
01 81 80 39 10

Présentation du programme "Le Clos d'Auron"

Découvrez une nouvelle résidence Le Clos d'Auron à Bourges pensée pour vous offrir bien plus qu'un logement : un véritable cadre de vie. Du studio cosy au spacieux 4 pièces, chaque appartement a été conçu pour allier confort, économies d'énergie et qualité de vie. Ascenseur, local vélos, parkings privatifs Tout est là pour simplifier votre quotidien. Étudiants, jeunes actifs, seniors : chacun y trouve sa place. Et pour les plus âgés, un pack 'confort' en option permet d'adapter le logement pour un maintien à domicile en toute sérénité. Vivre ici, c'est choisir la tranquillité d'un quartier agréable, tout en restant proche des commodités et du coeur de Bourges. C'est aussi faire le choix d'un habitat durable, conforme aux dernières normes de construction. Acheter du neuf, c'est bénéficier de nombreux avantages : un logement personnalisable, des garanties constructeur qui vous protègent pendant plusieurs années, des frais de notaire réduits, et pour votre 1er achat, la possibilité de financer une partie de votre bien grâce au prêt à taux zéro ! Pour toutes informations complémentaires, prenez contact avec nous !

Autres logements Studio du programme "Le Clos d'Auron"

Disponibilité Prix Genre Pièces Surface Étage
Voir
Optionné
112 000€ Appt. Studio 29m2 1er
Voir
Optionné
106 999€ Appt. Studio 31m2 1er