Prix
169 583€
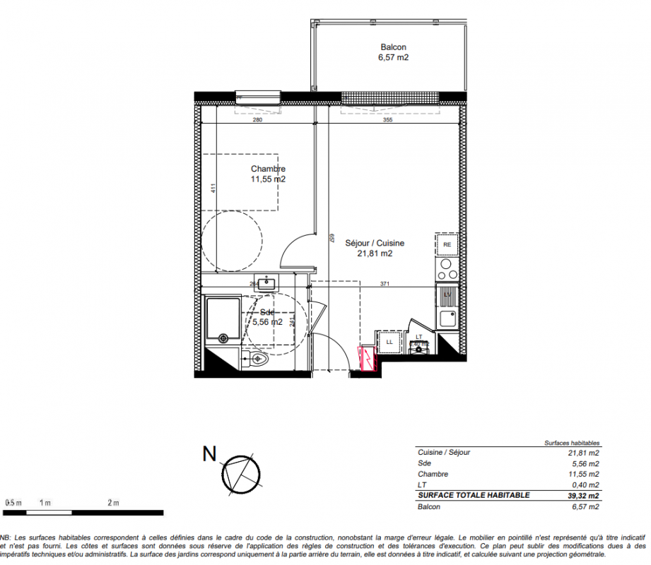
Type
Appt. au 0-RDC
Pièces
T2
Surface
42.6 m²
Exposition
Nord-Est
Ville
Chartres (28000)
Livraison
1er trimestre 2026
Informations
01 81 80 39 10

Présentation du programme "SEQUOIA PARK (LLI)"

Une métropole ambitieuse Un territoire en perpétuel mouvement Un paysage aussi urbain que bucolique Un cadre de vie prospère et apaisant

Autres logements T2 du programme "SEQUOIA PARK (LLI)"

Pas de logements disponibles
DO NOT CLICK