8 000€
255 500€
- €
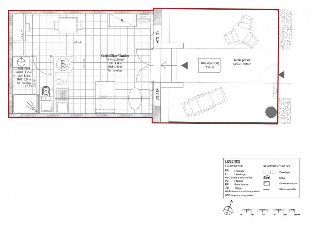
Type
Appt. au 0-RDC
Pièces
Studio
Surface
28.9 m²
Exposition
Est
Ville
Dreux (28100)
Livraison
4ème trimestre 2026
Informations
01 81 80 39 10

Présentation du programme "DOMAINE DES BAS BUISSONS"

Riche d’un patrimoine historique unique, le centre-ville de Dreux se démarque par son dynamisme et sa qualité de vie. Bordée par la Blaise, Dreux est une véritable ville historique. En sillonnant ses rues piétonnes, vous pourrez découvrir les remarquables maisons à colombages, les édifices historiques majestueux, et les nombreux commerces de proximité qui offrent une vie de quartier unique à ses habitants. Ville chaleureuse et accueillante, Dreux ne cesse de séduire et de surprendre par son charme incontestable.

Autres logements Studio du programme "DOMAINE DES BAS BUISSONS"

Disponibilité Prix Genre Pièces Surface Étage
Voir
Optionné
305 350€ Appt. Studio 30.07m2 0-RDC
DO NOT CLICK