Prix
210 000€
210 000€
Type
Appt. au 1er
Appt. au 1er
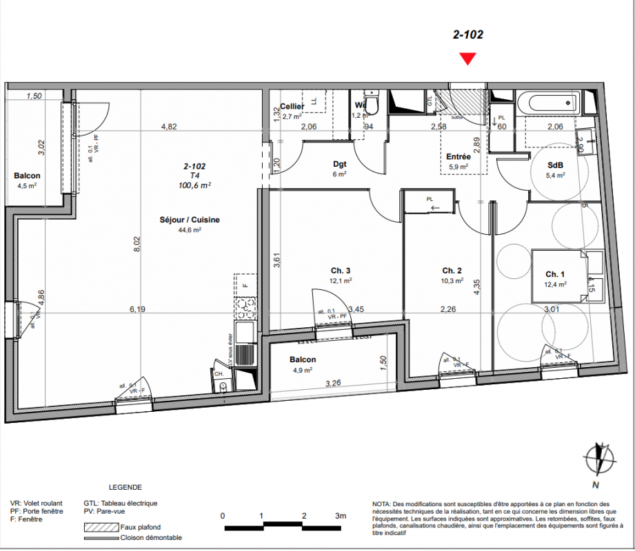
Pièces
T4
T4
Surface
100.6 m²
100.6 m²
Exposition
-
-
Ville
Orléans (45000)
Orléans (45000)
Livraison
4ème trimestre 2024
4ème trimestre 2024
Informations
01 81 80 39 10
01 81 80 39 10
Présentation du programme "O' de Loire"
Au cœur d’un environnement résidentiel de bonne facture : tissu pavillonnaire et quelques collectifs.
À 1 km du jardin des Plantes.
À 2 km des Bords de Loire.