186 900€
Appt. au 2ème
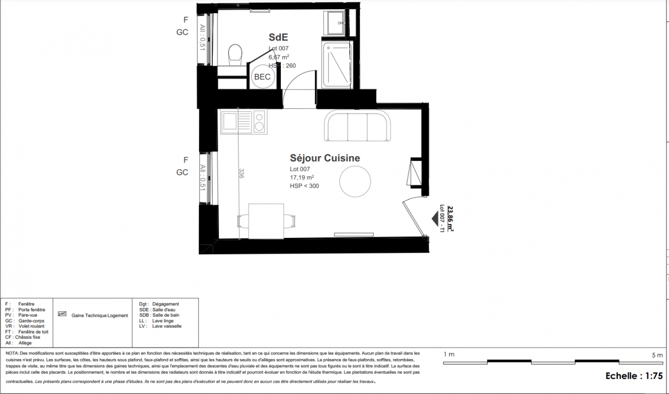
Studio
44.6 m²
Sud
Reims (51100)
1er trimestre 2024
01 81 80 39 10
Présentation du programme "Maison Commandeur"
Découvrez la vidéo du programme en cliquant ici Investissez à Reims une commune en plein essor située près de la Capitale ! Reims, située dans la Marne en région Grand-Est, est une ville dynamique avec 187 200 habitants, la classant au 12ème rang des villes françaises.Ville d'innovation et de culture, connue pour son histoire prestigieuse liée à la production de champagne.La ville possède un patrimoine historique et culturel riche avec des monuments emblématiques comme la cathédrale Notre-Dame de Reims, inscrite au patrimoine mondial de l'UNESCO.Cadre de vie exceptionnel avec une localisation idéale à proximité de l'Allemagne, de la Belgique et du Luxembourg, surnommée "le sourire de l'Europe". Une ville attractive grâce à son dynamisme économique et son excellence universitaire Une économie diversifiée avec un secteur viticole florissant et une forte présence industrielle et tertiaire.Ville universitaire, abritant plusieurs grandes écoles et universités, contribuant à un environnement jeune et dynamique.De nombreux événements et festivals tout au long de l'année, attirant visiteurs et habitants, et dynamisant la vie locale. Commodités à proximité La gare de Reims à 8 minutes en voiture de la résidence, offrant une connexion rapide avec Paris. La ligne grande vitesse, permet de relier la capitale en seulement 45 minutes.Un réseau de 18 lignes de bus et un tramway assurent une excellente desserte en transports en commun dans toute la ville.Accès facile aux principales autoroutes, facilitant les déplacements vers les grandes villes voisines et les pays frontaliers. L'aéroport de Paris-Charles de Gaulle accessible en moins d'une heure pour les voyages internationaux.Située aux abords du centre-ville, offrant un accès facile et rapide aux principales attractions et services urbains. A proximité des centres médicaux et hospitaliers, assurant un accès rapide aux soins de santé. Focus prestations/résidenceQuartier résidentiel central et paisible, toutes les commodités sont accessibles à pied : commerces, centres commerciaux, établissements scolaires.Appartements restaurés (T1 au T3) avec des matériaux nobles, dotés de cuisines aménagées et salles de bain équipées. Ils sont dotés d'une terrasse, ou d'un jardin, d'une cour intérieure et d'un parking. Extérieurs réaménagés incluant une cour intérieure et des jardins privatifs pour certains logements. Le + du programme Une bâtisse historique de caractère construite à la fin du XIXème siècle, initialement ap...
 
  
  
 