Prix
335 000€
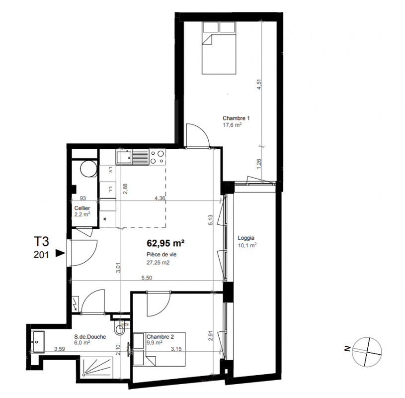
Type
Appt. au 2ème
Pièces
T3
Surface
62.95 m²
Exposition
-
Ville
Reims (51100)
Livraison
4ème trimestre 2027
Informations
01 81 80 39 10

Présentation du programme "Renaissance - REIMS"

A quelques minutes du centre historique de Reims, au coeur du quartier Saint-André. la résidence Renaissance donne une nouvelle vie à l'ancienne maternité . Découvrez 40 appartements neufs du 2 au 5 pièces aux surfaces généreuses avec balcon, jardin ou terrasse offrant des vues sur les toits de Reims. Profitez d'une qualité de vie remarquable en habitant une rue calme mais avec tous les commerces, transports ( gare dessert Paris en 45 minutes), écoles et restaurants accessibles en quelques minutes à pied. Eligible Pinel. Une copromotion Nacarat et Metin.Y.

Autres logements T3 du programme "Renaissance - REIMS"

Disponibilité Prix Genre Pièces Surface Étage
Voir
Disponible
332 000€ Appt. T3 65.58m2
Le bon plan
3ème
DO NOT CLICK