Prix
187 900€
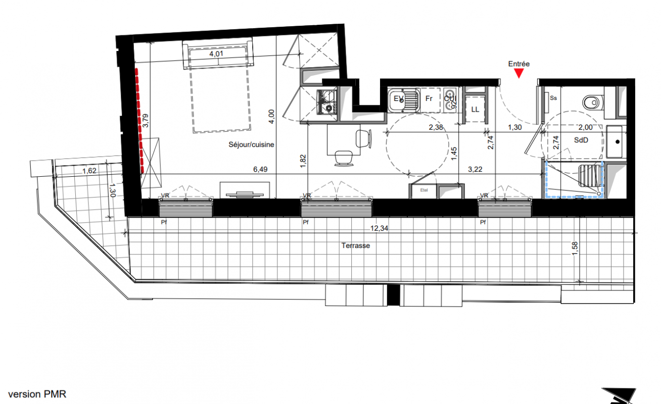
Type
Appt. au 3ème
Pièces
Studio
Surface
36.09 m²
Exposition
-
Ville
Reims (51100)
Livraison
4ème trimestre 2027
Informations
01 81 80 39 10

Présentation du programme "VILLA ART DECO"

OFFRE COMMERCIALE : REMISE DE 3 000 EUROS PAR PIECE jusqu'au 31 Décembre 2025 ! Devenez propriétaire d'un appartement de grand standing, dans une résidence intimiste située au coeur de Reims et pensée pour offrir un cadre de vie agréable tout en préservant le cachet de la façade emblématique du cinéma historique. Ce programme immobilier neuf unique en son genre propose des appartements aux prestations soignées, où modernité et authenticité se rencontrent harmonieusement. Chaque logement a été conçu avec attention pour répondre aux besoins de la vie contemporaine, dans un environnement calme et résidentiel. Idéalement situé à proximité immédiate des commerces, des transports et des principaux attraits culturels de la ville, ce projet offre une qualité de vie rare, entre effervescence citadine et sérénité quotidienne. Un lieu de vie unique, pour une nouvelle histoire à écrire. * Prix remisé, hors stationnement. Contactez-nous dès à présent pour en savoir plus !

Autres logements Studio du programme "VILLA ART DECO"

Disponibilité Prix Genre Pièces Surface Étage
Voir
Disponible
159 900€ Appt. Studio 28.43m2 2ème
Voir
Disponible
177 900€ Appt. Studio 33.57m2 1er
DO NOT CLICK