306 000€ (TVA 20%)
269 025€ (TVA 5.5%)
Appt. au 2ème
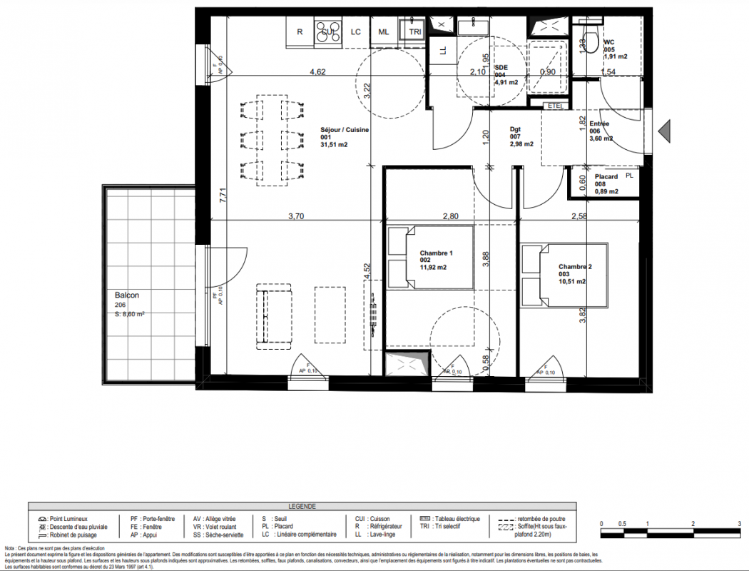
T3
68.23 m²
-
Nancy (54100)
3ème trimestre 2028
01 81 80 39 10
Présentation du programme "Le Bag-Art - NANCY"
mhlegoff@nacarat.com
06 46 08 58 48
**Commission 5% HT**
NOUVEAU À NANCY - Une adresse d'exception au coeur d'un quartier prisé
Découvrez une résidence intimiste alliant élégance et modernité, proposant des appartements neufs du 2 au 4 pièces dans l'un des secteurs résidentiels les plus recherchés de Nancy.
Idéalement située à quelques pas des rives, de la majestueuse Place Stanislas et du Parc de la Pépinière, cette adresse rare vous offre un cadre de vie d'exception où la sérénité du quartier rencontre la commodité du quotidien.
Chaque appartement dispose d'un espace extérieur privatif (balcon, terrasse, loggia ou jardin). Des places de stationnement sont également disponibles.
Investissez intelligemment grâce à des avantages financiers attractifs :
Éligibles au Prêt à Taux Zéro* (PTZ) et à la TVA réduite à 5,5%*, ces appartements bénéficient également de frais de notaire réduits. Des conditions idéales pour une première acquisition ou un investissement patrimonial serein.
*Voir conditions auprès de votre conseiller Nacarat.
Autres logements T3 du programme "Le Bag-Art - NANCY"
| Disponibilité | Prix | No | Genre | Pièces | Surface | Étage | Disponibilité | Prix | ||
|---|---|---|---|---|---|---|---|---|---|---|
| Voir | Disponible | 289 000€ | 301 | Appt. | T3 | 62.93m2 | 3ème | Disponible | 289 000€ | Voir |
| Voir | Optionné | 286 000€ | 001 | Appt. | T3 | 63.73m2 Le bon plan | 0-RDC | Optionné Mais pas encore vendu 😉 | 286 000€ | Voir |
| Voir | Disponible | 312 000€ | 306 | Appt. | T3 | 68.23m2 | 3ème | Disponible | 312 000€ | Voir |
| Voir | Disponible | 299 000€ | 107 | Appt. | T3 | 68.23m2 | 1er | Disponible | 299 000€ | Voir |
| Voir | Disponible | 306 000€ | 302 | Appt. | T3 | 70.2m2 | 3ème | Disponible | 306 000€ | Voir |
| Voir | Disponible | 299 000€ | 202 | Appt. | T3 | 70.2m2 | 2ème | Disponible | 299 000€ | Voir |
| Voir | Disponible | 282 000€ | 201 | Appt. | T3 | 62.93m2 | 2ème | Disponible | 282 000€ | Voir |