Prix
271 000€
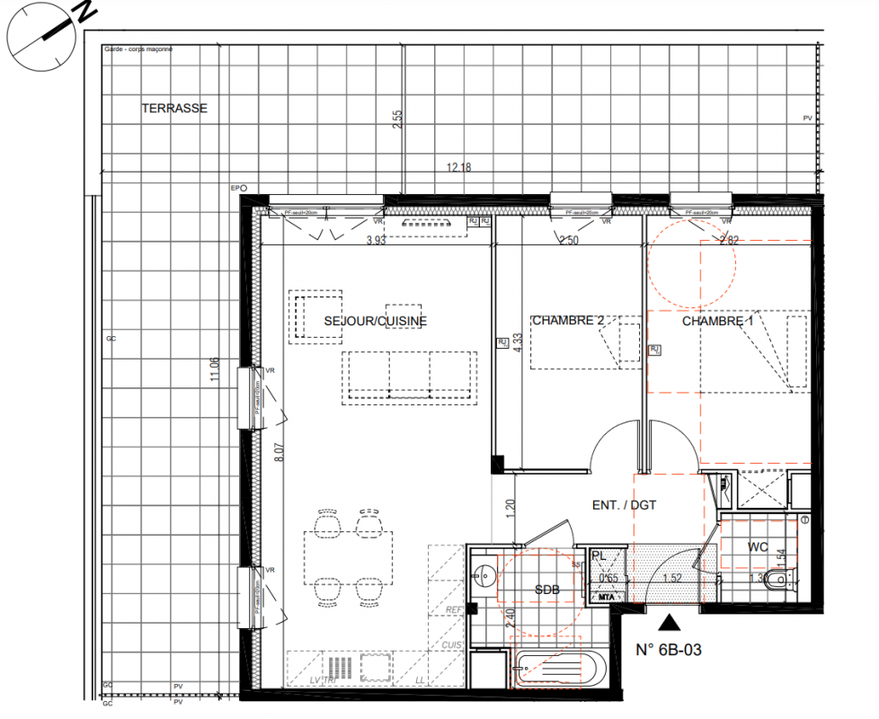
Type
Appt. au 0-RDC
Pièces
T3
Surface
67.85 m²
Le bon plan
Exposition
Sud
Ville
Montigny-lès-Metz (57158)
Livraison
3ème trimestre 2027
Informations
01 81 80 39 10

Présentation du programme " OXYGENE "

LE PRINTEMPS DE L'IMMO : FRAIS DE NOTAIRE OFFERTS !*Les travaux sont en cours à Montigny-Lès-Metz !Découvrez les derniers appartements neufs de ce programme immobilier neuf à Montigny-lès-Metz : OXYGENE. Situé au 4 rue Jean Monnet, au coeur de l'écoquartier Lizé, profitez ici d'un environnement verdoyant au pied de 12 000 m² de prairie. Derniers T2 de 44 m² avec balcon ou terrasse - salle de bains équipée - WC séparé et placardDerniers T3 de 65 à 69 m² avec terrasse et/ou loggia - exposé sud ouest et sud est - place de stationnementDerniers T4 de 80 à 95 m² avec terrasse ou balcon - place de stationnement et vues dégagées ! Envie d’investir ? Cette résidence est éligible au nouveau dispositif d’investissement locatif JEANBRUN, pour constituer un patrimoine, réduire vos impôts et préparer votre retraite !*Frais de notaire offerts, offre valable pour les 5 prochains réservataires, sous conditions de la signature d'un contrat de réservation jusqu'au 15/05/26 et à la réitération de l’acte authentique de vente dans les 3 mois qui suivent la réservation. 

Autres logements T3 du programme " OXYGENE "

Disponibilité Prix Genre Pièces Surface Étage
Voir
Disponible
360 000€ Appt. T3 69.36m2 4ème
DO NOT CLICK