Prix
207 600€  (TVA 20%)
182 515€  (TVA 5.5%)
Type
Appt. au 0-RDC
Pièces
T3
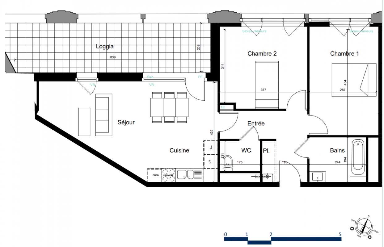
Surface
64 m²
Exposition
Nord-Ouest
Ville
Tourcoing (59200)
Livraison
4ème trimestre 2026
Informations
01 81 80 39 10

Présentation du programme "LA FABRIK"

Choisissez d'habiter un lieu emblématique, témoin du passé industriel de Tourcoing, aujourd'hui réinventé en un quartier vert et vivant : LA FABRIK.
Cette adresse unique propose deux derniers appartements neufs de 4 et 5 pièces, parfaits pour la vie de famille. Spacieux, lumineux et bien agencés, ils offrent un cadre de vie agréable, avec pour certains un espace extérieur. Le parking est inclus pour chaque logement.
Ce programme est éligible à la TVA réduite à 5,5%. Renseignez-vous !




Pour toutes informations complémentaires, prenez contact avec nous !

Autres logements T3 du programme "LA FABRIK"

Disponibilité Prix Genre Pièces Surface Étage
Voir
Disponible
207 600€ Appt. T3 65m2 0-RDC
DO NOT CLICK