391 242€ (TVA 20%)
343 967€ (TVA 5.5%)
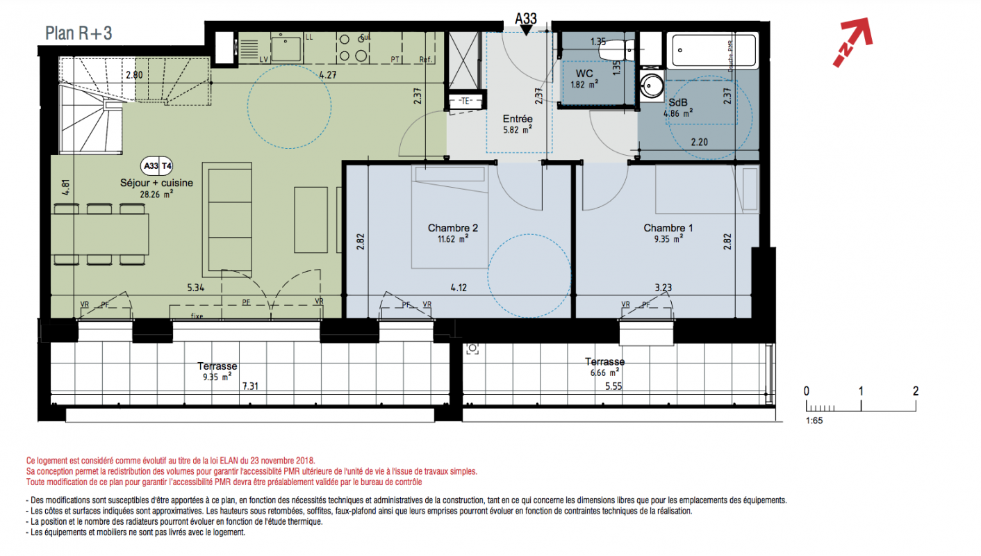
Appt. au 3ème
-
83.7 m²
-
Berck (62600)
1er trimestre 2027
01 81 80 39 10
Présentation du programme "LE FLIBUSTIER"
Résidence LE FLIBUSTIER - Berck-sur-Mer
LE FLIBUSTIER est un programme immobilier neuf situé à Berck-sur-Mer, station balnéaire reconnue de la Côte d'Opale, à seulement 6 minutes à vélo de la plage et à proximité immédiate du centre-ville, des commerces et des services.
La résidence se compose de 20 appartements neufs, du studio au T4 en duplex, dont 2 duplex familiaux, tous dotés d'un balcon ou d'une terrasse. Les logements offrent des volumes fonctionnels, une luminosité naturelle optimisée et des prestations conformes aux standards actuels de l'immobilier neuf : ascenseur PMR, stationnements, local à vélos et accès sécurisé.
L'architecture contemporaine, avec façades en enduit clair et toiture cuivrée, s'intègre harmonieusement dans l'environnement urbain de Berck-sur-Mer et contribue à la valorisation patrimoniale du projet.
Conforme à la réglementation RE2020, la résidence garantit des performances énergétiques maîtrisées et un confort durable pour les occupants.
Le programme LE FLIBUSTIER constitue une opportunité sécurisée adaptée aussi bien à la résidence principale, à la résidence secondaire qu'à l'investissement patrimonial sur un marché littoral dynamique. Eligible à la TVA 5,5%
Autres logements - du programme "LE FLIBUSTIER"
| Disponibilité | Prix | No | Genre | Pièces | Surface | Étage | Disponibilité | Prix | ||
|---|---|---|---|---|---|---|---|---|---|---|
| Voir | Disponible | 391 242€ | A26 | Appt. | - | 91.3m2 | 2ème | Disponible | 391 242€ | Voir |
| Voir | Disponible | 216 000€ | A23 | Appt. | - | 50.7m2 | 2ème | Disponible | 216 000€ | Voir |
| Voir | Disponible | 181 877€ | A12 | Appt. | - | 42.7m2 | 1er | Disponible | 181 877€ | Voir |
| Voir | Disponible | 278 559€ | A14 | Appt. | - | 64.4m2 | 1er | Disponible | 278 559€ | Voir |
| Voir | Disponible | 284 246€ | A15 | Appt. | - | 66.4m2 | 1er | Disponible | 284 246€ | Voir |
| Voir | Disponible | 187 564€ | A21 | Appt. | - | 42m2 | 0-RDC | Disponible | 187 564€ | Voir |
| Voir | Optionné | 289 934€ | A25 | Appt. | - | 66.4m2 | 2ème | Optionné Mais pas encore vendu 😉 | 289 934€ | Voir |
| Voir | Disponible | 152 303€ | A27 | Appt. | - | 34.3m2 | 2ème | Disponible | 152 303€ | Voir |
| Voir | Optionné | 295 621€ | A31 | Appt. | - | 72m2 | 3ème | Optionné Mais pas encore vendu 😉 | 295 621€ | Voir |
| Voir | Disponible | 145 900€ | A35 | Appt. | - | 25.7m2 | 3ème | Disponible | 145 900€ | Voir |
| Voir | Disponible | 171 000€ | A22 | Appt. | - | 42.7m2 Le bon plan | 2ème | Disponible | 171 000€ | Voir |