Prix
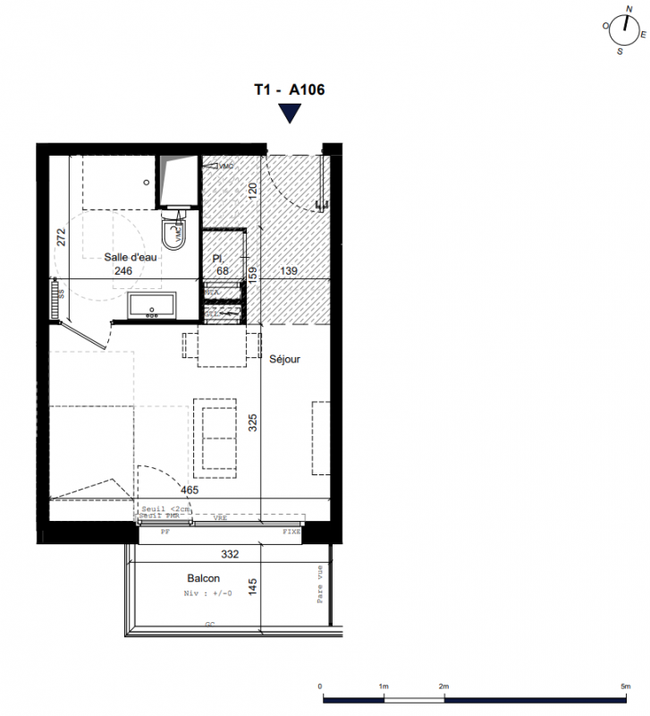
104 531€  (TVA 20%)
91 900€  (TVA 5.5%)
Type
Appt. au 1er
Pièces
-
Surface
26.54 m²
Exposition
-
Ville
Béthune (62400)
Livraison
4ème trimestre 2028
Informations
01 81 80 39 10

Présentation du programme "EQUILIBRE"

Programme immobilier neuf à Béthune (62400) - Résidence Équilibre.
Frais de notaire offerts *
Programme éligible au Prêt à Taux Zéro (PTZ), à la TVA réduite à 5,5 % et au statut LMNP.

Découvrez Équilibre, un nouveau programme immobilier neuf à Béthune, développé par Spirit Immobilier, composé de 40 appartements neufs du studio au 5 pièces. Située dans le quartier de l'Horlogerie, à seulement 5 minutes à pied de la gare de Béthune, la résidence bénéficie d'un emplacement central et recherché, idéal pour habiter ou investir.

Béthune séduit par son dynamisme, son centre-ville animé et son cadre de vie à taille humaine. L'adresse permet un accès rapide aux commerces, écoles, transports et services, tout en offrant un environnement résidentiel agréable et pratique au quotidien.

Des appartements neufs confortables et personnalisables : La résidence Équilibre se distingue par une architecture contemporaine et élégante, mettant en valeur des matériaux de qualité. Sécurisée, elle est équipée d'un visiophone pour garantir tranquillité et sérénité aux résidents.

Les appartements neufs, du studio au 5 pièces, proposent :
- des volumes généreux
- une belle luminosité naturelle
- des prestations soignées

Chaque logement est personnalisable selon vos envies : choix des teintes de parquet stratifié, des meubles de cuisine et des équipements de salle d'eau, pour créer un intérieur à votre image.

Les espaces extérieurs prolongent les lieux de vie avec :
- des balcons confortables
- de grandes terrasses pouvant atteindre jusqu'à 70 m²

Parfaits pour profiter de moments de détente ou recevoir en extérieur.

La résidence dispose également :
- d'un parking extérieur
- d'un local à vélos, pratique et sécurisé

Une opportunité idéale pour habiter ou investir à Béthune : Grâce à son emplacement stratégique à proximité immédiate de la gare de Béthune, du centre-ville et des bassins d'emploi, la résidence Équilibre constitue une opportunité attractive pour les investisseurs en LMNP, avec un rendement potentiel pouvant atteindre 6 %.

Les accédants à la propriété peuvent bénéficier :
- de la TVA réduite à 5,5 %
- du Prêt à Taux Zéro
- de remises exceptionnelles et des frais de notaire offerts pour faciliter leur projet immobilier neuf à Béthune.

Autres logements - du programme "EQUILIBRE"

Disponibilité Prix Genre Pièces Surface Étage
Voir
Disponible
157 991€ Appt. - 42.09m2 1er
Voir
Disponible
171 640€ Appt. - 45.23m2 1er
Voir
Disponible
104 531€ Appt. - 25.94m2 1er
Voir
Disponible
112 493€ Appt. - 28.87m2 1er
Voir
Disponible
112 493€ Appt. - 28.32m2 1er
Voir
Disponible
176 190€ Appt. - 45.82m2 1er
Voir
Disponible
230 787€ Appt. - 63.44m2 1er
Voir
Disponible
161 403€ Appt. - 42.09m2 2ème
Voir
Disponible
234 199€ Appt. - 63.09m2 2ème
Voir
Disponible
175 052€ Appt. - 45.23m2 2ème
Voir
Disponible
107 943€ Appt. - 25.94m2 2ème
Voir
Disponible
102 256€ Appt. - 25.12m2 2ème
Voir
Disponible
107 943€ Appt. - 26.54m2 2ème
Voir
Disponible
115 905€ Appt. - 28.87m2 2ème
Voir
Disponible
115 905€ Appt. - 28.32m2 2ème
Voir
Disponible
179 602€ Appt. - 45.82m2 2ème
Voir
Disponible
236 474€ Appt. - 63.46m2 2ème
Voir
Disponible
156 853€ Appt. - 42.54m2 2ème
Voir
Disponible
164 815€ Appt. - 42.09m2 3ème
Voir
Disponible
238 749€ Appt. - 63.09m2 3ème
Voir
Disponible
177 327€ Appt. - 45.23m2 3ème
Voir
Disponible
111 355€ Appt. - 25.94m2 3ème
Voir
Disponible
105 668€ Appt. - 25.12m2 3ème
Voir
Disponible
111 355€ Appt. - 26.54m2 3ème
Voir
Disponible
119 318€ Appt. - 28.87m2 3ème
Voir
Disponible
119 318€ Appt. - 28.32m2 3ème
Voir
Disponible
181 877€ Appt. - 45.82m2 3ème
Voir
Disponible
241 024€ Appt. - 63.46m2 3ème
Voir
Disponible
160 265€ Appt. - 42.54m2 3ème
Voir
Disponible
305 858€ Appt. - 89.21m2 4ème
Voir
Disponible
299 033€ Appt. - 90.68m2 4ème
Voir
Disponible
304 720€ Appt. - 87.53m2 4ème
Voir
Disponible
250 123€ Appt. - 63.01m2 4ème
Voir
Disponible
163 678€ Appt. - 42.54m2 4ème
Voir
Disponible
288 796€ Appt. - 90.68m2 5ème
Voir
Disponible
293 346€ Appt. - 87.53m2 5ème
Voir
Disponible
253 536€ Appt. - 63.01m2 5ème
Voir
Disponible
167 090€ Appt. - 42.54m2 5ème
Voir
Disponible
412 777€ Appt. - 121.76m2
Le bon plan
6ème
Voir
Disponible
226 237€ Appt. - 63.07m2 1er
Voir
Disponible
147 754€ Appt. - 42.54m2 1er
Voir
Disponible
284 246€ Appt. - 89.21m2 5ème
Voir
Disponible
368 417€ Appt. - 109.78m2 6ème
Voir
Disponible
96 569€ Appt. - 25.12m2 1er
DO NOT CLICK