Prix
305 000€
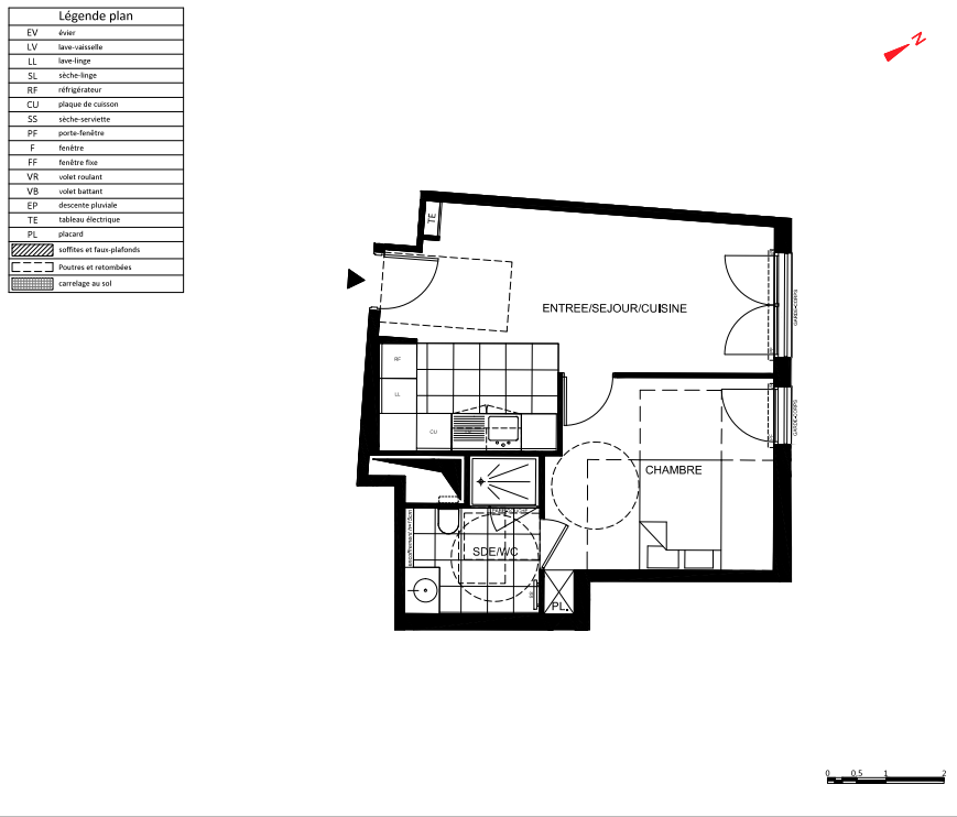
Type
Appt. au 4ème
Pièces
T2
Surface
40.59 m²
Exposition
-
Ville
Rueil-Malmaison (92500)
Livraison
1er trimestre 2024
Informations
01 81 80 39 10

Présentation du programme "RUEIL MALMAISON"

FRAIS DE NOTAIRES REDUITS
APPARTEMENTS DEJA LIVRES,
FIscalement Neuf (vente par une société dans les 5 ans de la livraison)
Livraison T4 2023
visitables
Actable immédiatement (promesse de vente )
honoraires 3.5% HT (compris dans le PV
toutes les clefs sont dans le lot B048 au RC accessible par jardin/portillon du Batiment C
POUR LES VISITES, DEMANDER LA CLEF A MIREILLE MAES A PRENDRE A BOULOGNE ET A RAPPORTER

les appartements sont en "revente dans les 5 ans) donc Frais de Notaires réduits, nous attendons confirmation
de la possibilité de bénéficier du PTZ pour les appartements qui n'ont pas été occupés.
les parkings sont vendus séparément
18000e le PK simple
25000€ le parking double
plus de renseignement ?
Mireille MAES OHAYON 0609457273

Autres logements T2 du programme "RUEIL MALMAISON"

Disponibilité Prix Genre Pièces Surface Étage
Voir
Optionné
314 000€ Appt. T2 41.68m2 0-RDC
Voir
Disponible
320 000€ Appt. T2 42.61m2 4ème
DO NOT CLICK