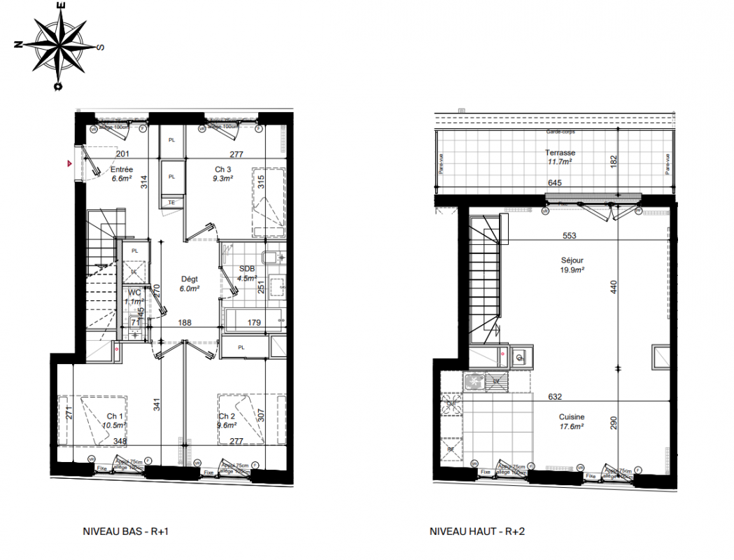
Prix
423 128€
423 128€
Type
Appt. au 1er
Appt. au 1er
Pièces
T4
T4
Surface
85 m²
85 m²
Exposition
-
-
Ville
Aubervilliers (93300)
Aubervilliers (93300)
Livraison
2ème trimestre 2027
2ème trimestre 2027
Informations
01 81 80 39 10
01 81 80 39 10
Présentation du programme "Les Rives du canal"
Découvrez une nouvelle résidence signée Alios, composée de 26 appartements du 2 au 5 pièces duplex avec espace extérieur pour la plupart. Les appartements sont traversants et bénéficient de belles expositions. La nature est également mise à l’honneur avec un jardin commun, un mail paysager et le square Roser qui se situe juste à côté de la résidence.