193 365€ (TVA 20%)
170 000€ (TVA 5.5%)
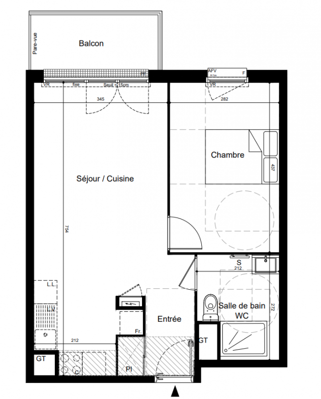
Appt. au 2ème
T2
44.9 m²
-
Drancy (93700)
3ème trimestre 2027
01 81 80 39 10
Présentation du programme "L'essentiel"
FRAIS DE NOTAIRE OFFERTS - TVA 5,5% - BRS RESIDENCE L'essentiel A DRANCY (93)RENDEZ-VOUS DANS NOTRE ESPACE DE VENTE : 133 rue Sadi Carnot à Drancy.Découvrez L'essentiel, notre nouvelle résidence idéalement située dans une commune dynamique et pleine de charme. Drancy bénéficie d'une position stratégique à mi-chemin entre le coeur de Paris et l'aéroport Charles-de-Gaulle.VOTRE CADRE DE VIE :- Plus de 33 hectares d'espaces verts dont le Parc de Ladoucette.- Ville labellisée "Ville Fleurie" depuis 2008 pour un environnement agréable.- Patrimoine riche avec le Château de Ladoucette et la Cité de la Muette.TRANSPORTS ET CONNECTIVITÉ :- RER B (Gare de Drancy) : rejoignez Paris Gare du Nord en seulement 15 minutes.- Desserte complète par bus et tramway pour vos trajets quotidiens.- Futur Grand Paris Express pour une valorisation de votre patrimoine.AVANTAGES FINANCIERS :- Accession à la propriété via le dispositif BRS (Bail Réel Solidaire).- TVA réduite à 5,5% pour l'achat de votre résidence principale.- FRAIS DE NOTAIRE OFFERTS sur votre projet immobilier.Contactez nos conseillers pour découvrir les plans et les conditions d'éligibilité. *Les prix tiennent compte de la TVA réduite. Voir conditions auprès de nos conseillers.
Autres logements T2 du programme "L'essentiel"
| Disponibilité | Prix | No | Genre | Pièces | Surface | Étage | Disponibilité | Prix | ||
|---|---|---|---|---|---|---|---|---|---|---|
| Voir | Disponible | 192 227€ | A001 | Appt. | T2 | 46.8m2 | 0-RDC | Disponible | 192 227€ | Voir |
| Voir | Disponible | 199 052€ | A002 | Appt. | T2 | 48.3m2 | 0-RDC | Disponible | 199 052€ | Voir |
| Voir | Disponible | 201 327€ | A005 | Appt. | T2 | 46.4m2 | 0-RDC | Disponible | 201 327€ | Voir |
| Voir | Disponible | 191 090€ | A007 | Appt. | T2 | 44.2m2 | 0-RDC | Disponible | 191 090€ | Voir |
| Voir | Disponible | 203 602€ | A008 | Appt. | T2 | 52.2m2 | 0-RDC | Disponible | 203 602€ | Voir |
| Voir | Disponible | 194 502€ | A104 | Appt. | T2 | 46.4m2 | 1er | Disponible | 194 502€ | Voir |
| Voir | Disponible | 189 953€ | A105 | Appt. | T2 | 44.9m2 | 1er | Disponible | 189 953€ | Voir |
| Voir | Disponible | 189 953€ | A106 | Appt. | T2 | 44.2m2 | 1er | Disponible | 189 953€ | Voir |
| Voir | Disponible | 196 777€ | A108 | Appt. | T2 | 46.1m2 | 1er | Disponible | 196 777€ | Voir |
| Voir | Disponible | 196 777€ | A109 | Appt. | T2 | 46.1m2 | 1er | Disponible | 196 777€ | Voir |
| Voir | Disponible | 191 090€ | A202 | Appt. | T2 | 46.5m2 | 2ème | Disponible | 191 090€ | Voir |
| Voir | Disponible | 193 365€ | A206 | Appt. | T2 | 44.2m2 | 2ème | Disponible | 193 365€ | Voir |
| Voir | Disponible | 200 190€ | A208 | Appt. | T2 | 46.1m2 | 2ème | Disponible | 200 190€ | Voir |
| Voir | Disponible | 200 190€ | A209 | Appt. | T2 | 46.1m2 | 2ème | Disponible | 200 190€ | Voir |
| Voir | Disponible | 208 152€ | A303 | Appt. | T2 | 44.8m2 | 3ème | Disponible | 208 152€ | Voir |
| Voir | Disponible | 192 227€ | A401 | Appt. | T2 | 44.9m2 | 4ème | Disponible | 192 227€ | Voir |
| Voir | Disponible | 199 052€ | A403 | Appt. | T2 | 44.8m2 | 4ème | Disponible | 199 052€ | Voir |