329 900€ (TVA 20%)
290 037€ (TVA 5.5%)
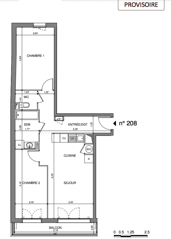
Appt. au 2ème
T3
63.46 m²
Sud
Gagny (93220)
3ème trimestre 2028
01 81 80 39 10
Présentation du programme "Programme neuf Gagny (93220)"
NOUVEAU à GAGNY ! Soyez parmi les premiers à choisir votre logement neuf avec espace extérieur et parking !Devenez propriétaire de votre appartement neuf du studio au 4 pièces pour le même prix que votre loyer grâce à la TVA réduite à 5,5%*.Située dans un quartier calme et pavillonnaire, la commune de Gagny séduit par son cadre de vie agréable, entre tranquillité résidentielle et proximité des commodités. À quelques kilomètres du centre-ville, la résidence profite d'un accès rapide aux commerces, services et équipements du quotidien.Implantée dans un environnement parfaitement desservi, la résidence bénéficie d'une excellente accessibilité. La gare RER E "Le Chénay Gagny", située à seulement 2 minutes à pied*, permet de rejoindre Paris en 21 minutes*. Un atout majeur pour les actifs souhaitant concilier sérénité et mobilité. Les axes routiers à proximité facilitent également les déplacements vers les communes voisines.À taille humaine, cette résidence de 46 appartements à l'architecture néoclassique propose des logements du studio au 4 pièces, pensés pour offrir confort et fonctionnalité. Tous les appartements disposent d'un espace extérieur : balcon, terrasse ou jardin privatif en rez-de-chaussée, pour profiter pleinement des beaux jours. Pour un quotidien facilité, la résidence met à disposition des places de parking pour tous les logements, ainsi qu'un local vélos, répondant aux nouveaux modes de déplacement.Contactez dès maintenant nos conseillers pour découvrir cette nouvelle résidence et choisir l'appartement neuf qui correspond à votre projet de vie à Gagny.
Autres logements T3 du programme "Programme neuf Gagny (93220)"
| Disponibilité | Prix | No | Genre | Pièces | Surface | Étage | Disponibilité | Prix | ||
|---|---|---|---|---|---|---|---|---|---|---|
| Voir | Disponible | 323 100€ | 003 | Appt. | T3 | 67.82m2 Le bon plan | 0-RDC | Disponible | 323 100€ | Voir |
| Voir | Disponible | 311 700€ | 007 | Appt. | T3 | 65.1m2 | 0-RDC | Disponible | 311 700€ | Voir |
| Voir | Disponible | 316 300€ | 205 | Appt. | T3 | 58.03m2 | 2ème | Disponible | 316 300€ | Voir |
| Voir | Disponible | 299 200€ | 207 | Appt. | T3 | 55.15m2 | 2ème | Disponible | 299 200€ | Voir |
| Voir | Disponible | 321 900€ | 305 | Appt. | T3 | 58.03m2 | 3ème | Disponible | 321 900€ | Voir |
| Voir | Disponible | 301 500€ | 306 | Appt. | T3 | 54.92m2 | 3ème | Disponible | 301 500€ | Voir |
| Voir | Disponible | 306 000€ | 307 | Appt. | T3 | 55.15m2 | 3ème | Disponible | 306 000€ | Voir |
| Voir | Disponible | 332 200€ | 308 | Appt. | T3 | 63.46m2 | 3ème | Disponible | 332 200€ | Voir |
| Voir | Disponible | 326 500€ | 403 | Appt. | T3 | 56.47m2 | 4ème | Disponible | 326 500€ | Voir |