251 400€ (TVA 20%)
221 023€ (TVA 5.5%)
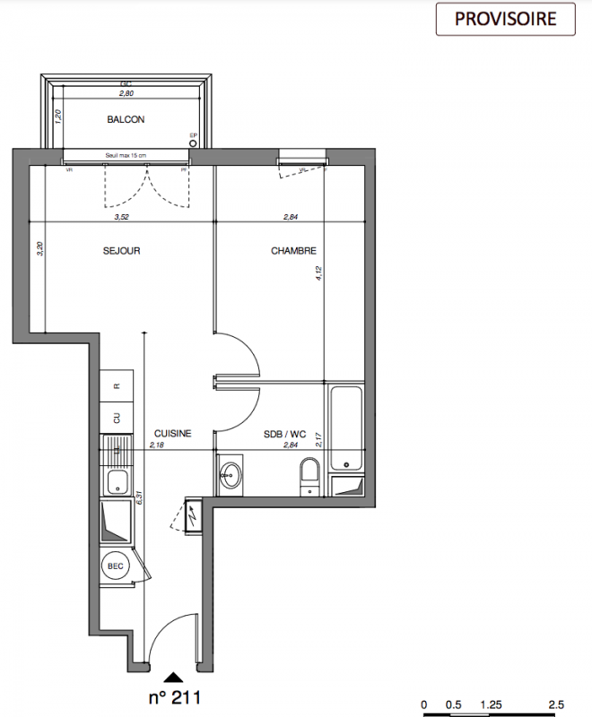
Appt. au 2ème
T2
40.59 m²
Nord
Gagny (93220)
3ème trimestre 2028
01 81 80 39 10
Présentation du programme "Programme neuf Gagny (93220)"
NOUVEAU à GAGNY ! Soyez parmi les premiers à choisir votre logement neuf avec espace extérieur et parking !Devenez propriétaire de votre appartement neuf du studio au 4 pièces pour le même prix que votre loyer grâce à la TVA réduite à 5,5%*.Située dans un quartier calme et pavillonnaire, la commune de Gagny séduit par son cadre de vie agréable, entre tranquillité résidentielle et proximité des commodités. À quelques kilomètres du centre-ville, la résidence profite d'un accès rapide aux commerces, services et équipements du quotidien.Implantée dans un environnement parfaitement desservi, la résidence bénéficie d'une excellente accessibilité. La gare RER E "Le Chénay Gagny", située à seulement 2 minutes à pied*, permet de rejoindre Paris en 21 minutes*. Un atout majeur pour les actifs souhaitant concilier sérénité et mobilité. Les axes routiers à proximité facilitent également les déplacements vers les communes voisines.À taille humaine, cette résidence de 46 appartements à l'architecture néoclassique propose des logements du studio au 4 pièces, pensés pour offrir confort et fonctionnalité. Tous les appartements disposent d'un espace extérieur : balcon, terrasse ou jardin privatif en rez-de-chaussée, pour profiter pleinement des beaux jours. Pour un quotidien facilité, la résidence met à disposition des places de parking pour tous les logements, ainsi qu'un local vélos, répondant aux nouveaux modes de déplacement.Contactez dès maintenant nos conseillers pour découvrir cette nouvelle résidence et choisir l'appartement neuf qui correspond à votre projet de vie à Gagny.
Autres logements T2 du programme "Programme neuf Gagny (93220)"
| Disponibilité | Prix | No | Genre | Pièces | Surface | Étage | Disponibilité | Prix | ||
|---|---|---|---|---|---|---|---|---|---|---|
| Voir | Disponible | 259 400€ | 006 | Appt. | T2 | 43.26m2 | 0-RDC | Disponible | 259 400€ | Voir |
| Voir | Disponible | 257 100€ | 201 | Appt. | T2 | 42.31m2 | 2ème | Disponible | 257 100€ | Voir |
| Voir | Disponible | 252 600€ | 202 | Appt. | T2 | 40.85m2 | 2ème | Disponible | 252 600€ | Voir |
| Voir | Disponible | 261 700€ | 203 | Appt. | T2 | 42.23m2 | 2ème | Disponible | 261 700€ | Voir |
| Voir | Disponible | 263 900€ | 204 | Appt. | T2 | 41.21m2 | 2ème | Disponible | 263 900€ | Voir |
| Voir | Disponible | 266 200€ | 301 | Appt. | T2 | 42.31m2 | 3ème | Disponible | 266 200€ | Voir |
| Voir | Disponible | 258 200€ | 302 | Appt. | T2 | 40.85m2 | 3ème | Disponible | 258 200€ | Voir |
| Voir | Disponible | 267 300€ | 303 | Appt. | T2 | 42.23m2 | 3ème | Disponible | 267 300€ | Voir |
| Voir | Disponible | 268 500€ | 304 | Appt. | T2 | 41.21m2 | 3ème | Disponible | 268 500€ | Voir |
| Voir | Disponible | 254 800€ | 309 | Appt. | T2 | 39.14m2 | 3ème | Disponible | 254 800€ | Voir |
| Voir | Disponible | 243 500€ | 310 | Appt. | T2 | 38.46m2 | 3ème | Disponible | 243 500€ | Voir |
| Voir | Disponible | 256 000€ | 311 | Appt. | T2 | 40.59m2 | 3ème | Disponible | 256 000€ | Voir |
| Voir | Disponible | 283 300€ | 401 | Appt. | T2 | 48.96m2 | 4ème | Disponible | 283 300€ | Voir |
| Voir | Disponible | 275 300€ | 405 | Appt. | T2 | 43.11m2 | 4ème | Disponible | 275 300€ | Voir |