Prix
201 666€ (TVA 20%)
177 298€ (TVA 5.5%)
201 666€ (TVA 20%)
177 298€ (TVA 5.5%)
Type
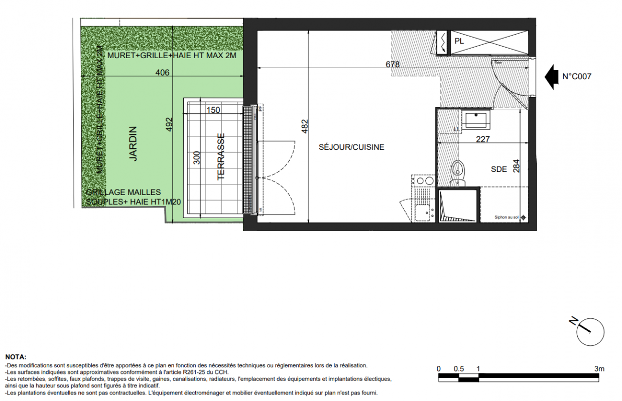
Appt. au 0-RDC
Appt. au 0-RDC
Pièces
Studio
Studio
Surface
31 m²
31 m²
Exposition
Nord-Ouest
Nord-Ouest
Ville
Neuilly-Plaisance (93360)
Neuilly-Plaisance (93360)
Livraison
1er trimestre 2028
1er trimestre 2028
Informations
01 81 80 39 10
01 81 80 39 10
Présentation du programme "Plaisancia"
Autres logements Studio du programme "Plaisancia"
| Disponibilité | Prix | No | Genre | Pièces | Surface | Étage | Disponibilité | Prix | ||
|---|---|---|---|---|---|---|---|---|---|---|
| Voir | Disponible | 197 083€ | 2301 | Appt. | Studio | 30m2 | 3ème | Disponible | 197 083€ | Voir |
| Voir | Disponible | 220 916€ | 1403 | Appt. | Studio | 32m2 | 4ème | Disponible | 220 916€ | Voir |
| Voir | Disponible | 226 416€ | 3306 | Appt. | Studio | 31m2 | 3ème | Disponible | 226 416€ | Voir |