466 350€ (TVA 20%)
408 056€ (TVA 5%)
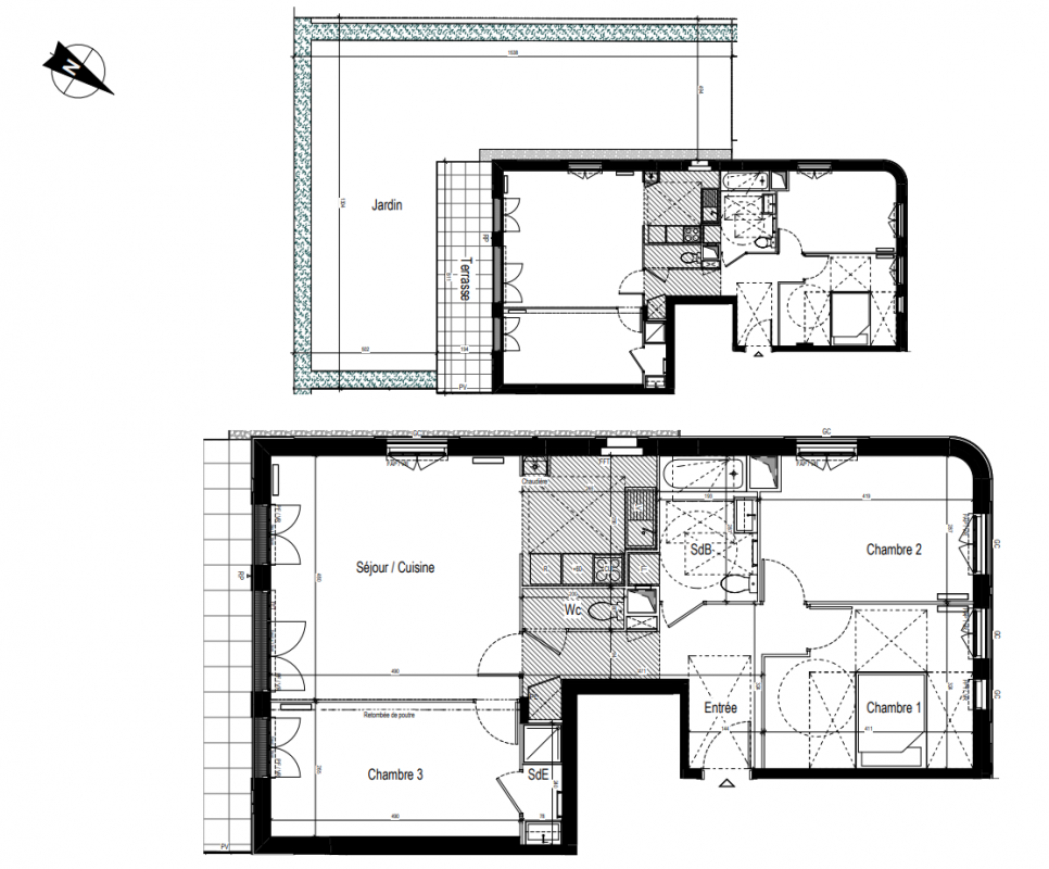
Appt. au 0-RDC
T4
85 m²
Sud-Est
Bezons (95870)
1er trimestre 2027
01 81 80 39 10
Présentation du programme "LES JARDINS ALBERT 1ER"
Découvrez votre nouvelle adresse, à Bezons, à quelques minutes du centre-ville ! La réalisation propose un choix d'appartements du studio au 5 pièces duplex, aux espaces généreux avec balcons, terrasses ou loggias ainsi que des places de stationnement. Au calme d'un quartier résidentiel vous profiterez d'un cadre de vie idéal avec de vastes espaces arborés. La résidence vise la certification RE2020 gage de confort et d'économies d'énergie au quotidien et bénéficie de la proximité immédiate d'un nouvel établissement scolaire et d'un centre de santé venant compléter les commerces du centre-ville accessible à pied pour votre plus grand confort. La ligne T2, offrant un accès direct à la gare de la Défense en 15 minutes se trouve à 1km.
 
  
  
 