Ce lot n’est plus disponible chez VIANOVA ou est vendu.
Vous pouvez revenir dans 24h pour vérifier le stock à jour ou contacter un conseiller Vianova pour vérifier le stock en direct.
Vous pouvez également continuer votre recherche sur notre site « ici ».
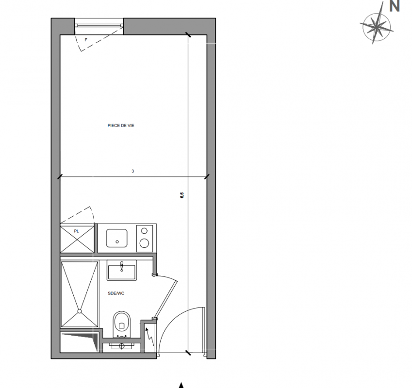
109 486€
Appt. au 0-RDC
-
18.3 m²
Nord
Roissy-en-France (95700)
2ème trimestre 2027
01 81 80 39 10
Présentation du programme "Symone By Adonis Roissy"
"Symone by Adonis" est une résidence plurielle permettant de vivre une expérience sensorielle et immersive haut de gamme spécialement conçue pour les audacieux. Elle bénéficie de la proximité des transports en commun : - A 9 min à pied de l'arrêt de bus "Passerelle"- A 10 min en bus du RER - ligne B - arrêt "Aéroport CDG"- A 2 min en voiture de l'autoroute A1, permettant de rejoindre Paris et les grands axes de l'est parisien (dont l'A3) Une nouvelle ligne de bus HNS facilitera l'accès au Parc des expositions de Villepinte (arrêt de bus à 300 m de la résidence) Le Golf de 18 trous est accessible en moins de 5 min en voiture ou à vélo via une piste-cyclable, ou en moins de 20 min à pied via des voies protégées. Elle a été pensée et imaginée comme une véritable expérience d'hébergement unique pour ses clients à travers une multitude de services et de divertissement sur-mesure pour enrichir leur séjour. Une ambiance originale, dans laquelle la décoration a été pensée de manière ludique et fonctionnelle pour faire voyager dans son univers GAMING, FUN, ARTY et DESIGN. Elle offre de nombreux espaces communs dans une ambiance originale : espace d'accueil / espace lounge, lobby / coworking, espace petit-déjeuner, salle de sport, bagagerie.
Autres logements - du programme "Symone By Adonis Roissy"
| Disponibilité | Prix | No | Genre | Pièces | Surface | Étage | Disponibilité | Prix | ||
|---|---|---|---|---|---|---|---|---|---|---|
| Voir | Disponible | 125 486€ | 106 | Appt. | - | 18.3m2 | 0-RDC | Disponible | 125 486€ | Voir |
| Voir | Disponible | 160 450€ | 109 | Appt. | - | 24m2 | 0-RDC | Disponible | 160 450€ | Voir |
| Voir | Disponible | 148 420€ | 111 | Appt. | - | 22m2 | 0-RDC | Disponible | 148 420€ | Voir |
| Voir | Disponible | 126 164€ | 132 | Appt. | - | 18.3m2 | 0-RDC | Disponible | 126 164€ | Voir |
| Voir | Disponible | 126 164€ | 134 | Appt. | - | 18.3m2 | 0-RDC | Disponible | 126 164€ | Voir |
| Voir | Disponible | 126 164€ | 136 | Appt. | - | 18.3m2 | 0-RDC | Disponible | 126 164€ | Voir |
| Voir | Disponible | 126 164€ | 146 | Appt. | - | 18.3m2 | 0-RDC | Disponible | 126 164€ | Voir |
| Voir | Disponible | 126 164€ | 155 | Appt. | - | 18.3m2 | 0-RDC | Disponible | 126 164€ | Voir |
| Voir | Disponible | 126 164€ | 157 | Appt. | - | 18.3m2 | 0-RDC | Disponible | 126 164€ | Voir |
| Voir | Optionné | 125 486€ | 159 | Appt. | - | 18.3m2 | 0-RDC | Optionné Mais pas encore vendu 😉 | 125 486€ | Voir |
| Voir | Optionné | 125 486€ | 166 | Appt. | - | 18.3m2 | 0-RDC | Optionné Mais pas encore vendu 😉 | 125 486€ | Voir |
| Voir | Optionné | 109 486€ | 240 | Appt. | - | 18.3m2 | 0-RDC | Optionné Mais pas encore vendu 😉 | 109 486€ | Voir |
| Voir | Optionné | 114 288€ | 257 | Appt. | - | 19m2 | 0-RDC | Optionné Mais pas encore vendu 😉 | 114 288€ | Voir |
| Voir | Disponible | 132 935€ | 33 | Appt. | - | 22.1m2 | 0-RDC | Disponible | 132 935€ | Voir |
| Voir | Disponible | 138 348€ | 45 | Appt. | - | 23m2 | 0-RDC | Disponible | 138 348€ | Voir |
| Voir | Disponible | 147 623€ | 103 | Appt. | - | 22m2 | 0-RDC | Disponible | 147 623€ | Voir |
| Voir | Disponible | 160 450€ | 115 | Appt. | - | 24m2 | 0-RDC | Disponible | 160 450€ | Voir |
| Voir | Disponible | 126 164€ | 150 | Appt. | - | 18.3m2 | 0-RDC | Disponible | 126 164€ | Voir |
| Voir | Disponible | 126 164€ | 156 | Appt. | - | 18.3m2 | 0-RDC | Disponible | 126 164€ | Voir |
| Voir | Disponible | 154 434€ | 163 | Appt. | - | 23m2 | 0-RDC | Disponible | 154 434€ | Voir |
| Voir | Disponible | 126 164€ | 168 | Appt. | - | 18.3m2 | 0-RDC | Disponible | 126 164€ | Voir |