Ce lot n’est plus disponible chez VIANOVA ou est vendu.
 Vous pouvez revenir dans 24h pour vérifier le stock à jour ou contacter un conseiller Vianova pour vérifier le stock en direct.
 Vous pouvez également continuer votre recherche sur notre site « ici ». 
  Prix 
223 000€
 223 000€
  Type
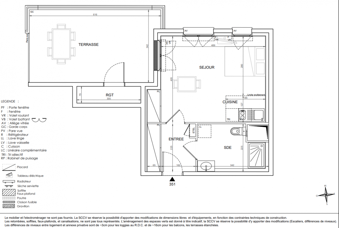
Appt. au 5ème
 Appt. au 5ème
  Pièces
Studio
 Studio
  Surface
34.68 m²
 34.68 m²
  Exposition
Nord
 Nord
  Ville
Champigny-sur-Marne (94500)
 Champigny-sur-Marne (94500)
  Livraison
4ème trimestre 2026
 4ème trimestre 2026
 Informations
01 81 80 39 10
 01 81 80 39 10
Présentation du programme "Terrasses de Neuville"
Dans le quartier convivial et agréable du Plateau, découvrez une résidence à l'architecture néo-classique. Les logements aux volumes généreux, déclinés du studio au 5 pièces, sont ouverts sur un bel espace extérieur : balcon, terrasse ou jardin ! Le cœur d’îlot central, véritable jardin en ville, devient un lieu de détente pour les résidents. Des lignes de bus en pied d’immeuble vous permettront de rejoindre les différentes gares RER A & E avoisinantes et le centre-ville de Champigny-sur-Marne. *conditions auprès de votre conseiller
 
  
  
 