Ce lot n’est plus disponible chez VIANOVA ou est vendu.
Vous pouvez revenir dans 24h pour vérifier le stock à jour ou contacter un conseiller Vianova pour vérifier le stock en direct.
Vous pouvez également continuer votre recherche sur notre site « ici ».
311 338€ (TVA 20%)
273 718€ (TVA 5.5%)
Appt. au 0-RDC
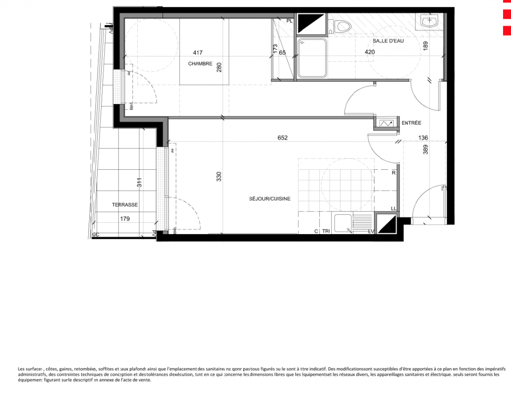
T2
48.99 m²
-
Villiers-sur-Marne (94350)
4ème trimestre 2027
01 81 80 39 10
Présentation du programme "Domaine Des Prunais (Bâtiment A)"
Nichée dans un environnement paisible et verdoyant, notre nouvelle résidence s’apprête à voir le jour et à offrir un cadre de vie harmonieux, à la fois moderne et intimement connecté à la nature. Avec son architecture élégante, ses lignes contemporaines et ses matériaux soigneusement sélectionnés, elle s’inscrit parfaitement dans son environnement tout en affirmant une identité forte et intemporelle.La conception des appartements neufs du studio au 5 pièces a été pensée pour répondre aux plus hautes exigences de confort : généreuses surfaces, luminosité naturelle omniprésente, agencements optimisés et prestations de qualité. Chaque logement bénéficie d’un espace extérieur – balcon, terrasse panoramique ou jardin privatif.Des commerces et restaurants viendront animer les rez-de-chaussée, créant un lien naturel entre les habitants et les acteurs du quartier. Une nouvelle centralité. Mais ce projet va encore plus loin. Il propose un véritable retour à l’essentiel avec des espaces communs inédits : un verger partagé, un potager collaboratif, un jardin d’enfants, ouverts à tous les résidents. Des lieux pensés pour cultiver à la fois la terre… et les liens humains.Parfaitement connectée, la résidence bénéficie d’un emplacement stratégique à seulement 10 minutes* de la gare du Grand Paris Noisy–Champs, accessible directement en bus ou en voiture. Véritable hub de mobilité, cette gare figure parmi les plus importantes d’Île-de-France, reliant rapidement Paris et les grands pôles économiques de la métropole. Une accessibilité précieuse qui renforce l’attractivité du projet, aussi bien pour les résidents actifs que pour les investisseurs en quête de valorisation durable.
Autres logements T2 du programme "Domaine Des Prunais (Bâtiment A)"
| Disponibilité | Prix | No | Genre | Pièces | Surface | Étage | Disponibilité | Prix | ||
|---|---|---|---|---|---|---|---|---|---|---|
| Voir | Archivé | 288 018€ | A1 002 | Appt. | T2 | 43.95m2 | 0-RDC | Archivé | 288 018€ | Voir |
| Voir | Archivé | 282 725€ | A1 401 | Appt. | T2 | 43.45m2 | 0-RDC | Archivé | 282 725€ | Voir |
| Voir | Archivé | 288 882€ | A2 006 | Appt. | T2 | 42.83m2 | 0-RDC | Archivé | 288 882€ | Voir |
| Voir | Archivé | 277 231€ | A1 301 | Appt. | T2 | 43.45m2 | 0-RDC | Archivé | 277 231€ | Voir |
| Voir | Archivé | 284 003€ | A1 302 | Appt. | T2 | 44.52m2 | 0-RDC | Archivé | 284 003€ | Voir |
| Voir | Archivé | 293 098€ | A1 305 | Appt. | T2 | 43.95m2 | 0-RDC | Archivé | 293 098€ | Voir |
| Voir | Archivé | 288 909€ | A1 402 | Appt. | T2 | 44.52m2 | 0-RDC | Archivé | 288 909€ | Voir |
| Voir | Archivé | 302 467€ | A1 405 | Appt. | T2 | 43.95m2 | 0-RDC | Archivé | 302 467€ | Voir |
| Voir | Archivé | 301 273€ | A1 406 | Appt. | T2 | 43.75m2 | 0-RDC | Archivé | 301 273€ | Voir |
| Voir | Archivé | 298 756€ | A2 107 | Appt. | T2 | 48.99m2 | 0-RDC | Archivé | 298 756€ | Voir |
| Voir | Archivé | 299 119€ | A2 206 | Appt. | T2 | 48.99m2 | 0-RDC | Archivé | 299 119€ | Voir |
| Voir | Archivé | 297 681€ | A2 303 | Appt. | T2 | 48.13m2 | 0-RDC | Archivé | 297 681€ | Voir |
| Voir | Archivé | 297 946€ | A2 305 | Appt. | T2 | 43.11m2 | 0-RDC | Archivé | 297 946€ | Voir |