339 900€
Maison au 0-RDC
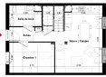
T5
93.84 m²
-
Gargenville (78440)
1er trimestre 2028
01 81 80 39 10
Présentation du programme "LES SARMENTS"
FRAIS DE NOTAIRE OFFERTS* « LES SARMENTS » : Le bien chez soi ! Un projet au confort durable qui se distingue par son mode constructif innovant : une construction modulaire en bois naturel qui intègre la technologie Vestack. En copromotion avec ce spécialiste de la construction hors-site et bas-carbone. Idéalement situé, le projet est au coeur d'un quartier résidentiel et il est à proximité immédiate de la gare (5 min à pied). Il se compose d'appartements allant du 2 au 4 pièces ainsi que des maisons de 4 et 5 pièces. « LES SARMENTS » a de nombreux atouts majeurs comme des logements traversants Est-Ouest, un coeur d'îlot végétalisé et la garantie des labellisations RE2020 avec l'atteinte du seuil 2028 (supérieur au seuil réglementaire 2025), Label biodivercity, NF Habitat et Biosourcé de niveau 3. Ce projet se distingue par l'orientation des bâtiments qui maximise l'ensoleillement et dégage des vues lointaines. Votre quotidien sera idyllique ! Contactez-nous dès à présent pour en savoir plus ! * Conditions détaillées en espace de vente.
Autres logements T5 du programme "LES SARMENTS"
| Disponibilité | Prix | No | Genre | Pièces | Surface | Étage | Disponibilité | Prix | ||
|---|---|---|---|---|---|---|---|---|---|---|
| Voir | Disponible | 339 900€ | M04 | Maison | T5 | 93.84m2 | 0-RDC | Disponible | 339 900€ | Voir |
| Voir | Disponible | 344 900€ | M02 | Maison | T5 | 93.84m2 | 0-RDC | Disponible | 344 900€ | Voir |
| Voir | Disponible | 349 900€ | M01 | Maison | T5 | 96.69m2 Le bon plan | 0-RDC | Disponible | 349 900€ | Voir |

