Prix
251 000€
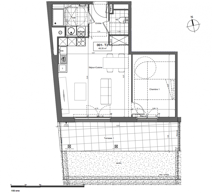
Type
Appt. au 0-RDC
Pièces
T2
Surface
49.35 m²
Exposition
Sud
Ville
Plaisir (78370)
Livraison
4ème trimestre 2027
Informations
01 81 80 39 10

Présentation du programme "LES JARDINS D'AVIGNOU"

CONFORT
• Revêtement de sol en PVC esprit parquet.
• Salles de bains et salles d'eau pré-équipées avec carrelage, faïences et meuble vasque avec miroir et bandeau lumineux.
• Chauffage et eau chaude par chaudière individuelle.
• Radiateurs sèche-serviettes, dans les salles de bains.
• Menuiseries extérieures en aluminium à l'extérieur, double vitrage et volets roulants.
• Parties communes et halls d'entrée décorés par notre architecte d'intérieur.
• 1 place de parking minimum par appartement.
• Locaux vélos.
SÉCURITÉ
• Accès au sous-sol sécurisé.
• Accès à la résidence sécurisé par un SAS, par digicode, visiophone et badge vigik.
• Porte palière avec serrure de sûreté 3 points A2P*.
QUALITÉ
• Façades traitées avec des matériaux de qualité : pierre, brique et enduit en façade, menuiseries en aluminium, toiture en tuiles...
• Programme conforme à la réglementation RE2020 .

Autres logements T2 du programme "LES JARDINS D'AVIGNOU"

Disponibilité Prix Genre Pièces Surface Étage
Voir
Optionné
249 000€ Appt. T2 49.3m2 1er
Voir
Optionné
257 000€ Appt. T2 49.32m2 2ème
Voir
Optionné
238 000€ Appt. T2 46.88m2 3ème
DO NOT CLICK