Prix
317 000€
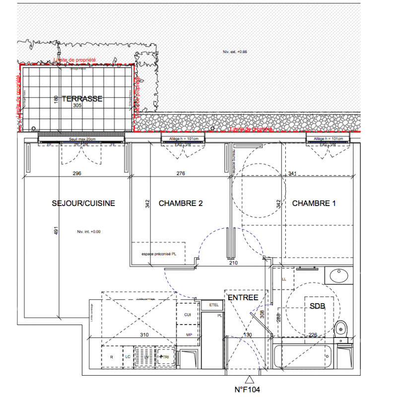
Type
Appt. au 1er
Pièces
T3
Surface
53.9 m²
Exposition
Nord-Est
Ville
Sartrouville (78500)
Livraison
1er trimestre 2028
Informations
01 81 80 39 10

Présentation du programme "CENTRAL JAU.BERT"

Au cœur du centre-ville de Sartrouville, profitez d’une belle adresse pour devenir propriétaire d’un appartement tout confort, du studio au 5 pièces, avec balcon, ou généreuse terrasse en attique. À 550 m* de la gare permettant de rallier La Défense en 10 min**, la résidence s’implante sur une rue commerçante pleine de charme, à proximité des écoles, des équipements culturels et sportifs. Dotées d’une architecture élégante et raffinée, les façades offrent une alternance de matériaux et de couleurs qui apportent du rythme à cet ensemble résidentiel.

Autres logements T3 du programme "CENTRAL JAU.BERT"

Pas de logements disponibles