225 000€
Appt. au 2ème
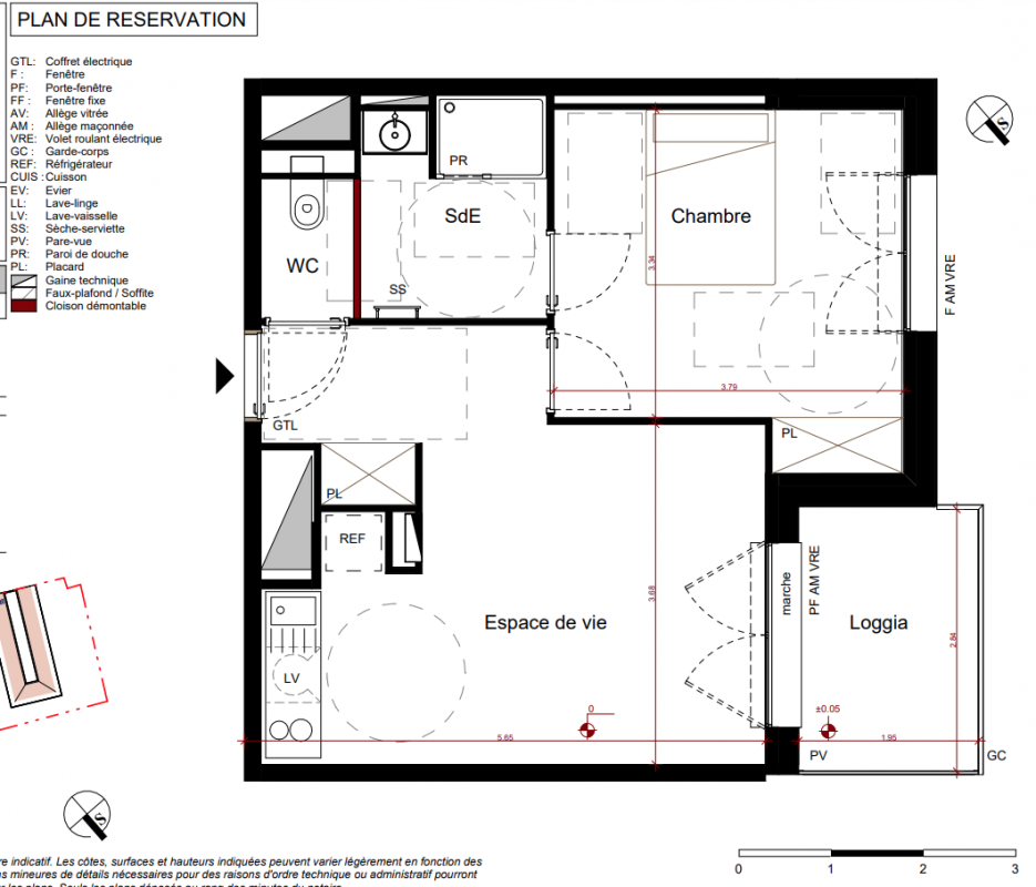
T2
42.5 m²
-
Aytré (17440)
4ème trimestre 2028
01 81 80 39 10
Présentation du programme "PORT-MARTIN"
[ OFFRE DE LANCEMENT – AUX PORTES DE LA ROCHELLE ] // AYTRÉ – Profitez de l’offre de lancement « Frais de notaire offerts »* sur PORT-MARTIN, une résidence neuve idéalement située boulevard du Commandant Charcot, à proximité immédiate de La Rochelle.
Entre océan Atlantique et cadre résidentiel, Aytré séduit par sa douceur de vivre et son dynamisme. La plage d’Aytré est accessible en 5 minutes à vélo, les bus Yélo (lignes 1 et 20) à 3 minutes à pied, et La Rochelle à seulement 13 minutes en voiture. Commerces, écoles et services de proximité facilitent le quotidien dans un environnement équilibré, adapté aussi bien à une résidence principale qu’à un investissement.
La résidence propose des appartements du studio au 3 pièces, conçus pour allier lumière naturelle et confort de vie. Les grandes ouvertures et les orientations soignées favorisent la luminosité, tandis que chaque logement bénéficie d’un espace extérieur prolongeant agréablement les pièces de vie. Certains appartements offrent également une possibilité de vue mer. Organisée autour d’un cœur d’îlot paysager végétalisé, PORT-MARTIN s’inscrit dans une architecture contemporaine au sein d’un cadre harmonieux.
Conforme à la RE2020 seuil 2025, la résidence intègre des stationnements couverts, des locaux vélos sécurisés, ainsi qu’un ascenseur et des accès sécurisés.
Les appartements bénéficient de prestations soignées : jardin privatif, balcon ou terrasse, sols stratifiés et grès émaillé, grande douche avec pare-douche et meuble vasque, volets électriques et porte palière 3 points.
*Voir les conditions sur la page Mentions légales de notre site Vianova.fr
Contactez nos conseillers Lamotte à BRUGES ou rendez-vous sur LAMOTTE.FR pour en savoir plus et concrétiser votre projet immobilier à Aytré.
Autres logements T2 du programme "PORT-MARTIN"
| Disponibilité | Prix | No | Genre | Pièces | Surface | Étage | Disponibilité | Prix | ||
|---|---|---|---|---|---|---|---|---|---|---|
| Voir | Disponible | 219 000€ | A001 | Appt. | T2 | 41.9m2 | 0-RDC | Disponible | 219 000€ | Voir |
| Voir | Disponible | 179 000€ | A004 | Appt. | T2 | 39.3m2 | 0-RDC | Disponible | 179 000€ | Voir |
| Voir | Optionné | 195 000€ | A005 | Appt. | T2 | 42.8m2 | 0-RDC | Optionné Mais pas encore vendu 😉 | 195 000€ | Voir |
| Voir | Disponible | 189 000€ | A006 | Appt. | T2 | 42.6m2 | 0-RDC | Disponible | 189 000€ | Voir |
| Voir | Disponible | 215 000€ | A012 | Appt. | T2 | 42.1m2 | 0-RDC | Disponible | 215 000€ | Voir |
| Voir | Disponible | 220 000€ | A102 | Appt. | T2 | 42.5m2 | 1er | Disponible | 220 000€ | Voir |
| Voir | Disponible | 215 000€ | A107 | Appt. | T2 | 44m2 | 1er | Disponible | 215 000€ | Voir |
| Voir | Disponible | 210 000€ | A108 | Appt. | T2 | 46.6m2 | 1er | Disponible | 210 000€ | Voir |
| Voir | Disponible | 200 000€ | A109 | Appt. | T2 | 42.8m2 | 1er | Disponible | 200 000€ | Voir |
| Voir | Optionné | 198 000€ | A110 | Appt. | T2 | 42.6m2 | 1er | Optionné Mais pas encore vendu 😉 | 198 000€ | Voir |
| Voir | Disponible | 210 000€ | A116 | Appt. | T2 | 42.1m2 | 1er | Disponible | 210 000€ | Voir |
| Voir | Disponible | 220 000€ | A207 | Appt. | T2 | 44m2 | 2ème | Disponible | 220 000€ | Voir |
| Voir | Disponible | 215 000€ | A208 | Appt. | T2 | 46.5m2 | 2ème | Disponible | 215 000€ | Voir |
| Voir | Disponible | 209 000€ | A209 | Appt. | T2 | 42.8m2 | 2ème | Disponible | 209 000€ | Voir |
| Voir | Disponible | 207 000€ | A210 | Appt. | T2 | 42.6m2 | 2ème | Disponible | 207 000€ | Voir |
| Voir | Disponible | 219 000€ | A212 | Appt. | T2 | 42.1m2 | 2ème | Disponible | 219 000€ | Voir |
| Voir | Disponible | 219 000€ | A305 | Appt. | T2 | 41.3m2 | 3ème | Disponible | 219 000€ | Voir |
| Voir | Disponible | 225 000€ | A306 | Appt. | T2 | 44m2 | 3ème | Disponible | 225 000€ | Voir |
| Voir | Disponible | 224 000€ | A405 | Appt. | T2 | 41.3m2 | 4ème | Disponible | 224 000€ | Voir |
| Voir | Disponible | 230 000€ | A406 | Appt. | T2 | 44m2 | 4ème | Disponible | 230 000€ | Voir |