155 400€
Appt. au 2ème
-
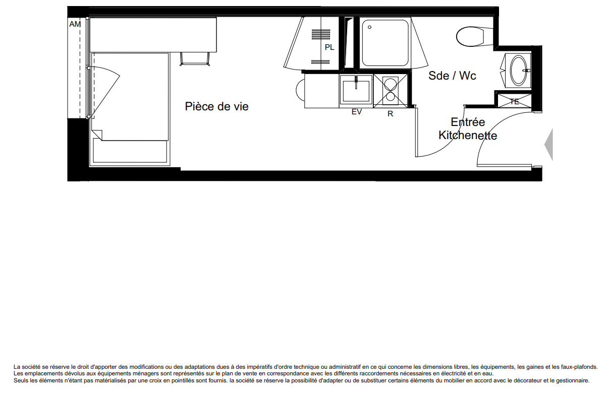
19.66 m²
Ouest
La Rochelle (17000)
2ème trimestre 2026
01 81 80 39 10
Présentation du programme "DOCK 54"
Située aux abords du port de plaisance de La Rochelle, la résidence DOCK 54 propose un nouveau lieu de vie innovant et convivial. Avec son architecture moderne, tout en transparence, la résidence se compose de 181 lots d'une pièce à la collocation de 5 personnes. Elle offre des espaces communs chaleureux, aux inspirations locales et qui font référence à la douceur de vivre de la ville. Entre rayures, couleurs pastel, esprit guinguette de plage et cabane de pêcheur, la résidence affirme son identité rocheloise. En plus des espaces communs traditionnels (espaces de détente, coworking, gaming, etc.), DOCK 54 se pare d’un rooftop avec piscine, salle de fitness et sauna.Enfin, la résidence accueillera un restaurant et un lieu de coworking privatifs.
 
  
  
 