Prix
310 000€
310 000€
Type
Appt. au 1er
Appt. au 1er
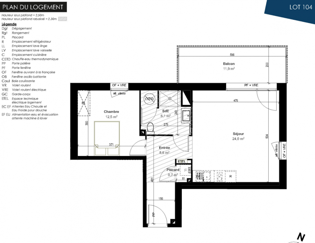
Pièces
T2
T2
Surface
51.9 m²
51.9 m²
Exposition
-
-
Ville
La Rochelle (17000)
La Rochelle (17000)
Livraison
4ème trimestre 2027
4ème trimestre 2027
Informations
01 81 80 39 10
01 81 80 39 10
Présentation du programme "Tempo"
Tempo – Résidence neuve à La RochelleDécouvrez Tempo, une résidence élégante et conTemporaine située à seulement 2 km du centre-ville de La Rochelle. Composée de 9 logements du T2 au T5, elle offre de belles surfaces, des extérieurs privatifs (terrasses ou jardins), et un cadre paysager soigné. 2 logements premium dont un duplex avec grandes terrasses. Stationnement privatif en sous-sol, espaces verts partagés, chauffage performant et prestations de qualité. Proche transports, commerces et gare. Certification RE2020 et environnement calme à proximité immédiate des commodités.