Ce lot n’est plus disponible chez VIANOVA ou est vendu.
Vous pouvez revenir dans 24h pour vérifier le stock à jour ou contacter un conseiller Vianova pour vérifier le stock en direct.
Vous pouvez également continuer votre recherche sur notre site « ici ».
184 000€ (TVA 20%)
168 667€ (TVA 10%)
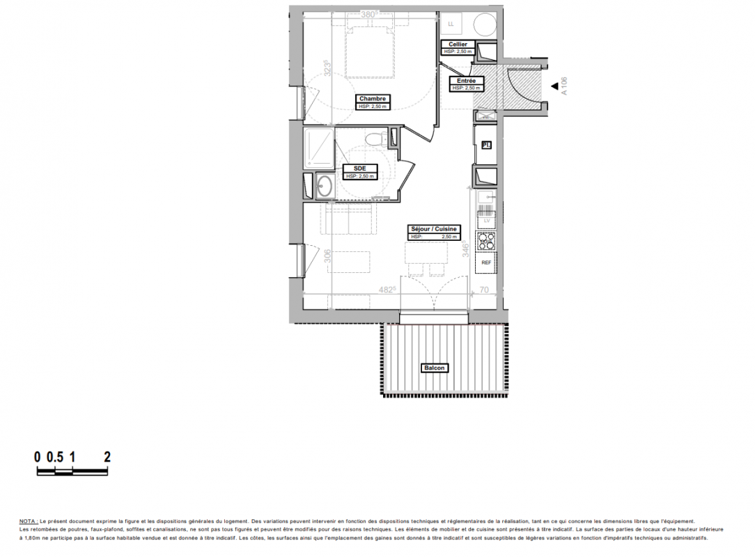
Appt. au 1er
T2
46 m²
Sud-Ouest
La Tremblade (17390)
3ème trimestre 2027
01 81 80 39 10
Présentation du programme "CÔTE & SAUVAGE"
Devenez propriétaire de votre appart neuf : ON VOUS REMBOURSE JUSQU'A 500 euros PAR MOIS (1) pendant les 3 premières années + FRAIS DE NOTAIRE OFFERTS (2) jusqu'au 31 mars 2026.DEMARRAGE DES TRAVAUX
A proximité de l' le d'Oléron, votre nouvelle adresse idéale entre Rochefort et Royan est à La Tremblade
Entre centre-ville et forêt, laissez-vous séduire par un pied-à-terre à La Tremblade Ronce-les-Bains.
La résidence « Côte & Sauvage » bénéficie d'un emplacement idéal pour y vivre à l'année, à proximité immédiate de 25 km de magnifiques plages, tout en offrant un accès rapide au centre-ville : en moins de 10 minutes à pied ou à vélo, profitez du marché, du port de la Grève et de tous les commerces et services qui rythmeront votre quotidien.
La résidence « Côte & Sauvage est une adresse de choix pour une résidence secondaire ou un investissement locatif avec un large choix de 2 et 3 pièces, et quelques appartements 4 pièces pour vivre à l'année ou devenir propriétaire avec le PTZ.
Autres logements T2 du programme "CÔTE & SAUVAGE"
| Disponibilité | Prix | No | Genre | Pièces | Surface | Étage | Disponibilité | Prix | ||
|---|---|---|---|---|---|---|---|---|---|---|
| Voir | Disponible | 182 999€ | 1003 | Appt. | T2 | 46m2 | 0-RDC | Disponible | 182 999€ | Voir |
| Voir | Optionné | 175 999€ | 1104 | Appt. | T2 | 42m2 | 1er | Optionné Mais pas encore vendu 😉 | 175 999€ | Voir |
| Voir | Disponible | 178 999€ | 1205 | Appt. | T2 | 40m2 | 2ème | Disponible | 178 999€ | Voir |
| Voir | Disponible | 188 999€ | 1206 | Appt. | T2 | 45m2 | 2ème | Disponible | 188 999€ | Voir |
| Voir | Disponible | 197 999€ | 1208 | Appt. | T2 | 47m2 | 2ème | Disponible | 197 999€ | Voir |
| Voir | Disponible | 197 999€ | 1209 | Appt. | T2 | 45m2 | 2ème | Disponible | 197 999€ | Voir |
| Voir | Disponible | 209 999€ | 2004 | Appt. | T2 | 49m2 | 0-RDC | Disponible | 209 999€ | Voir |
| Voir | Optionné | 167 999€ | 2006 | Appt. | T2 | 43m2 Le bon plan | 0-RDC | Optionné Mais pas encore vendu 😉 | 167 999€ | Voir |
| Voir | Disponible | 182 999€ | 2103 | Appt. | T2 | 43m2 | 1er | Disponible | 182 999€ | Voir |
| Voir | Disponible | 188 999€ | 2203 | Appt. | T2 | 43m2 | 2ème | Disponible | 188 999€ | Voir |
| Voir | Optionné | 169 999€ | 1004 | Appt. | T2 | 42m2 | 0-RDC | Optionné Mais pas encore vendu 😉 | 169 999€ | Voir |
| Voir | Disponible | 175 999€ | 1105 | Appt. | T2 | 40m2 | 1er | Disponible | 175 999€ | Voir |
| Voir | Disponible | 194 999€ | 1203 | Appt. | T2 | 46m2 | 2ème | Disponible | 194 999€ | Voir |