Prix
553 200€
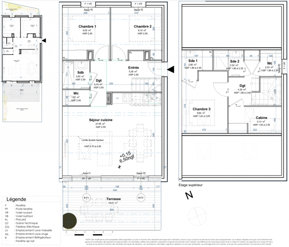
Type
Appt. au 0-RDC
Pièces
T4
Surface
89.5 m²
Exposition
Sud
Ville
Saint-Pierre-d'Oléron (17310)
Livraison
2ème trimestre 2026
Informations
01 81 80 39 10

Présentation du programme "La Demeure d'IO"

La résidence se compose de 45 appartements et maisons de ville allant du studio au T5.Véritable jardin d'Eden, La Demeure d'IO possède un îlot central ainsi de généreux extérieurs verdoyants et arborés.La maison de maître déjà existante datant du 19eme siècle, sert d'accueil pour accéder à la résidence.Conçus dans une unité harmonieuse, les 4 bâtiments de la résidence (en R 1 ou R 2) sont implantés autour d'îlot.

Autres logements T4 du programme "La Demeure d'IO"

Disponibilité Prix Genre Pièces Surface Étage
Voir
Disponible
543 600€ Appt. T4 86.22m2 0-RDC
DO NOT CLICK