Prix
172 940€
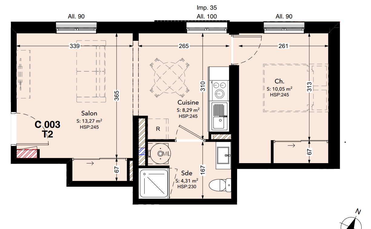
Type
Appt. au 0-RDC
Pièces
T2
Surface
35.9 m²
Exposition
-
Ville
Niort (79000)
Livraison
3ème trimestre 2027
Informations
01 81 80 39 10

Présentation du programme "Nexum"

Situé en plein cœur de Niort, Nexum se distingue par la transformation de trois bâtiments emblématiques en résidence moderne de 38 logements aux espaces optimisés, du T1 au T3. Conçu pour répondre aux besoins du quotidien, ce projet s’intègre pleinement dans notre engagement pour une construction durable en réhabilitant un patrimoine existant tout en apportant des prestations contemporaines. Grâce à son éligibilité aux dispositifs Denormandie et Déficit Foncier, Nexum offre une opportunité rare d’investissement. Ces avantages fiscaux permettent de réduire significativement l’imposition des investisseurs tout en s’assurant d’un bien à fort potentiel locatif. Capitale des mutuelles d’assurance, Niort bénéficie d’une économie florissante et d’un marché immobilier dynamique. Avec des infrastructures en développement, un cadre de vie agréable et une demande locative en hausse, la ville attire de plus en plus d’actifs et d’étudiants. Investir dans Nexum, c’est profiter de cette expansion et valoriser son patrimoine immobilier dans une ville tournée vers l’avenir.Pourquoi investir à Niort ?Un marché locatif attractif : prix accessibles avec une rentabilité locative intéressante.Un dynamisme économique fort : Capitale des mutuelles d’assurance, Niort accueille de nombreux sièges sociaux et entreprises innovantes.Une demande locative en hausse : Grâce à l’implantation d’écoles supérieures, de nouvelles entreprises et à l’attrait du territoire.Des infrastructures en plein développement : Modernisation des transports, nouveaux équipements et réaménagements urbains.Une qualité de vie appréciée : Ville à taille humaine avec des espaces verts, une offre culturelle riche et une proximité avec la côté Atlantique. Ne manquez pas cette occasion unique de conjuguer rentabilité, engagement écologique et valorisation patrimoniale. Contactez-nous dès aujourd’hui pour en savoir plus sur Nexum et réservez votre futur bien immobilier !

Autres logements T2 du programme "Nexum"

Disponibilité Prix Genre Pièces Surface Étage
Voir
Disponible
221 012€ Appt. T2 44.2m2 0-RDC
Voir
Disponible
175 577€ Appt. T2 36.1m2 0-RDC
Voir
Disponible
175 583€ Appt. T2 36m2 0-RDC
Voir
Disponible
220 349€ Appt. T2 44.2m2 0-RDC
Voir
Disponible
166 658€ Appt. T2 33.1m2 1er
Voir
Disponible
161 793€ Appt. T2 32.7m2 2ème
Voir
Disponible
220 821€ Appt. T2 44.2m2 0-RDC
Voir
Disponible
175 577€ Appt. T2 35.9m2 0-RDC
Voir
Disponible
175 605€ Appt. T2 36.2m2 0-RDC
Voir
Disponible
220 051€ Appt. T2 44.4m2
Le bon plan
0-RDC
Voir
Disponible
169 076€ Appt. T2 33.1m2 1er
Voir
Disponible
165 585€ Appt. T2 32.7m2 3ème
Voir
Disponible
215 005€ Appt. T2 44.3m2 0-RDC
Voir
Disponible
172 942€ Appt. T2 36.1m2 0-RDC