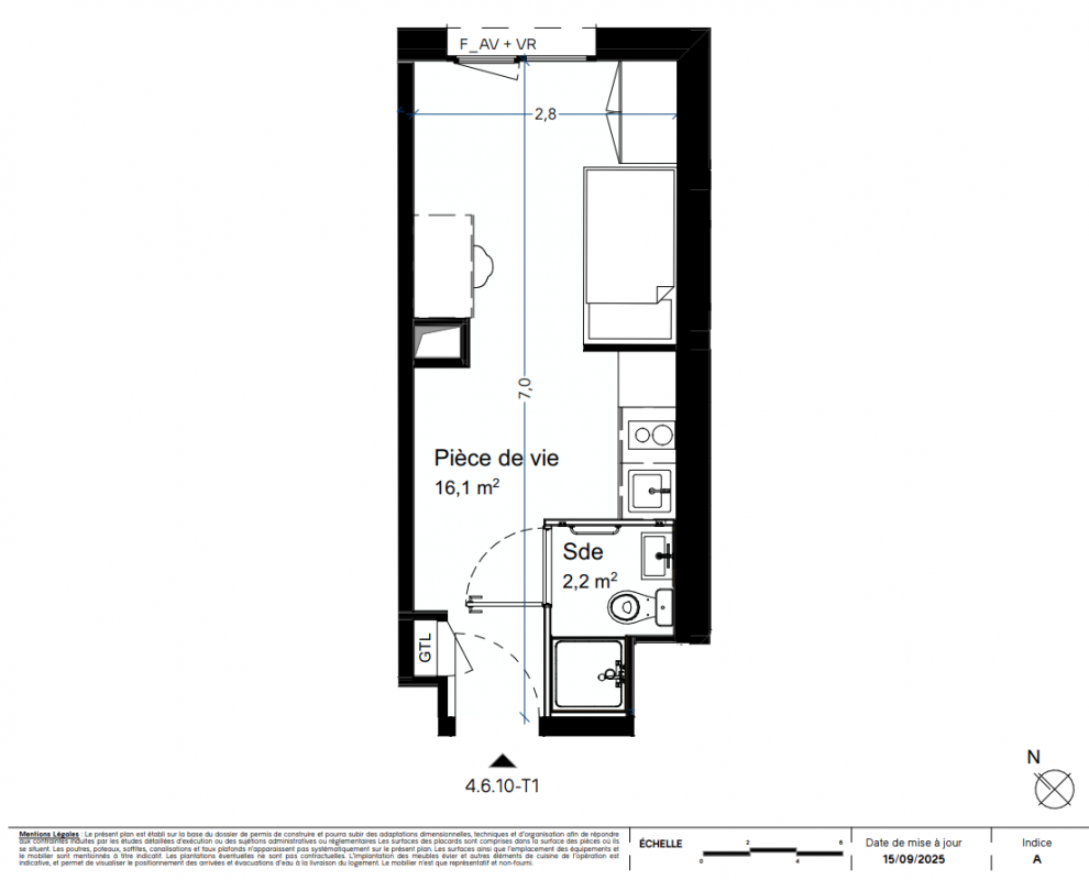
92 000€
Appt. au 6ème
Studio
18.3 m²
Nord-Est
Bordeaux (33000)
3ème trimestre 2028
01 81 80 39 10
Présentation du programme "Bordo Neo Nue Propriété"
Situé sur la rive droite de la Garonne, Le Belvédère s’impose comme l’un des projets urbains les plus ambitieux de Bordeaux. À proximité immédiate de la gare Saint-Jean, du pont Saint-Jean et du tramway A, ce quartier en pleine transformation conjugue dynamisme urbain, accessibilité et qualité de vie. Bordé par les quais et les espaces verts, il offre un cadre de vie recherché, entre ville et nature. Bordo Neo : un investissement patrimonial en nue-propriété Le programme Bordo Neo se compose de deux bâtiments modernes, dont l’un est entièrement dédié à la nue-propriété. Ce dispositif vous permet d’acquérir un bien à prix réduit, sans gestion locative ni fiscalité supplémentaire. Pendant 16 ans, les logements – 140 studios répartis du R+1 au R+7 – seront exploités pour loger des étudiants, répondant à une demande locative forte dans une métropole universitaire de plus de 100 000 étudiants. En rez-de-chaussée, les résidents bénéficieront d’espaces partagés : coworking, terrasse, laverie, local vélo et accueil. À l’issue de l’usufruit, vous récupérez un bien remis en état, libre d’occupation, avec une forte valorisation patrimoniale et une fiscalité avantageuse en cas de revente.
Autres logements Studio du programme "Bordo Neo Nue Propriété"
| Disponibilité | Prix | No | Genre | Pièces | Surface | Étage | Disponibilité | Prix | ||
|---|---|---|---|---|---|---|---|---|---|---|
| Voir | Optionné | 83 000€ | 4112 | Appt. | Studio | 19.1m2 | 1er | Optionné Mais pas encore vendu 😉 | 83 000€ | Voir |
| Voir | Optionné | 85 500€ | 4416 | Appt. | Studio | 18.4m2 | 4ème | Optionné Mais pas encore vendu 😉 | 85 500€ | Voir |
| Voir | Disponible | 86 000€ | 4314 | Appt. | Studio | 18.4m2 | 3ème | Disponible | 86 000€ | Voir |
| Voir | Optionné | 87 000€ | 4312 | Appt. | Studio | 19.1m2 | 3ème | Optionné Mais pas encore vendu 😉 | 87 000€ | Voir |
| Voir | Disponible | 87 000€ | 4506 | Appt. | Studio | 18.2m2 | 5ème | Disponible | 87 000€ | Voir |
| Voir | Optionné | 87 500€ | 4304 | Appt. | Studio | 19.1m2 | 3ème | Optionné Mais pas encore vendu 😉 | 87 500€ | Voir |
| Voir | Disponible | 88 000€ | 4410 | Appt. | Studio | 18.3m2 | 4ème | Disponible | 88 000€ | Voir |
| Voir | Disponible | 88 000€ | 4414 | Appt. | Studio | 18.4m2 | 4ème | Disponible | 88 000€ | Voir |
| Voir | Disponible | 88 500€ | 4508 | Appt. | Studio | 18.4m2 | 5ème | Disponible | 88 500€ | Voir |
| Voir | Disponible | 89 000€ | 4412 | Appt. | Studio | 19.1m2 | 4ème | Disponible | 89 000€ | Voir |
| Voir | Disponible | 89 000€ | 4606 | Appt. | Studio | 18.2m2 | 6ème | Disponible | 89 000€ | Voir |
| Voir | Disponible | 89 500€ | 4404 | Appt. | Studio | 19.1m2 | 4ème | Disponible | 89 500€ | Voir |
| Voir | Optionné | 89 500€ | 4518 | Appt. | Studio | 18.5m2 | 5ème | Optionné Mais pas encore vendu 😉 | 89 500€ | Voir |
| Voir | Optionné | 90 000€ | 4502 | Appt. | Studio | 18.5m2 | 5ème | Optionné Mais pas encore vendu 😉 | 90 000€ | Voir |
| Voir | Disponible | 90 000€ | 4510 | Appt. | Studio | 18.3m2 | 5ème | Disponible | 90 000€ | Voir |
| Voir | Disponible | 90 000€ | 4514 | Appt. | Studio | 18.4m2 | 5ème | Disponible | 90 000€ | Voir |
| Voir | Disponible | 91 000€ | 4512 | Appt. | Studio | 19.1m2 | 5ème | Disponible | 91 000€ | Voir |
| Voir | Disponible | 91 000€ | 4706 | Appt. | Studio | 18.2m2 | 7ème | Disponible | 91 000€ | Voir |
| Voir | Disponible | 91 500€ | 4504 | Appt. | Studio | 19.1m2 | 5ème | Disponible | 91 500€ | Voir |
| Voir | Disponible | 91 500€ | 4618 | Appt. | Studio | 18.5m2 | 6ème | Disponible | 91 500€ | Voir |
| Voir | Disponible | 91 500€ | 4716 | Appt. | Studio | 18.4m2 | 7ème | Disponible | 91 500€ | Voir |
| Voir | Disponible | 92 000€ | 4614 | Appt. | Studio | 18.4m2 | 6ème | Disponible | 92 000€ | Voir |
| Voir | Disponible | 92 500€ | 4708 | Appt. | Studio | 18.4m2 | 7ème | Disponible | 92 500€ | Voir |
| Voir | Disponible | 93 500€ | 4718 | Appt. | Studio | 18.5m2 | 7ème | Disponible | 93 500€ | Voir |
| Voir | Disponible | 94 000€ | 4710 | Appt. | Studio | 18.3m2 | 7ème | Disponible | 94 000€ | Voir |
| Voir | Disponible | 94 000€ | 4714 | Appt. | Studio | 18.4m2 | 7ème | Disponible | 94 000€ | Voir |
| Voir | Disponible | 95 000€ | 4719 | Appt. | Studio | 19m2 | 7ème | Disponible | 95 000€ | Voir |
| Voir | Disponible | 108 000€ | 4220 | Appt. | Studio | 23.4m2 | 2ème | Disponible | 108 000€ | Voir |
| Voir | Disponible | 112 000€ | 4420 | Appt. | Studio | 23.4m2 | 4ème | Disponible | 112 000€ | Voir |
| Voir | Disponible | 114 000€ | 4520 | Appt. | Studio | 23.4m2 | 5ème | Disponible | 114 000€ | Voir |
| Voir | Disponible | 116 000€ | 4620 | Appt. | Studio | 23.4m2 | 6ème | Disponible | 116 000€ | Voir |
| Voir | Optionné | 79 000€ | 4106 | Appt. | Studio | 18.2m2 Le bon plan | 1er | Optionné Mais pas encore vendu 😉 | 79 000€ | Voir |
| Voir | Disponible | 81 500€ | 4216 | Appt. | Studio | 18.4m2 | 2ème | Disponible | 81 500€ | Voir |
| Voir | Optionné | 82 000€ | 4102 | Appt. | Studio | 18.5m2 | 1er | Optionné Mais pas encore vendu 😉 | 82 000€ | Voir |
| Voir | Optionné | 82 000€ | 4110 | Appt. | Studio | 18.3m2 | 1er | Optionné Mais pas encore vendu 😉 | 82 000€ | Voir |