Ce lot n’est plus disponible chez VIANOVA ou est vendu.

Vous pouvez revenir dans 24h pour vérifier le stock à jour ou contacter un conseiller Vianova pour vérifier le stock en direct.
Vous pouvez également continuer votre recherche sur notre site « ici ».

Prix
190 440€
Type
Appt. au 3ème
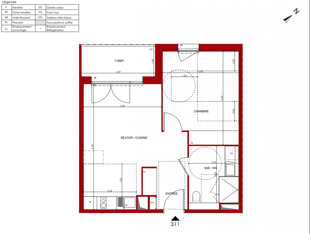
Pièces
T2
Surface
45 m²
Exposition
Nord-Ouest
Ville
Villeneuve-sur-Lot (47300)
Livraison
2ème trimestre 2026
Informations
01 81 80 39 10

Présentation du programme "LE DAMIER"

Découvrez la nouvelle résidence services seniors Nexity à Villeneuve sur Lot, en partenariat avec Domitys, le gestionnaire leader sur ce marché. Un emplacement idéal pour investir en toute sérénité sur un concept en plein développement. Ce projet de résidence services seniors s'implante en plein coeur de ville à moins de 10 min à pied du Centre Historique de Villeneuve sur Lot.Il se compose d'appartements neufs à vendre, indépendants et fonctionnels, du studio au 3 pièces. Une équipe attentive et disponible est présente 7/7 jours pour le confort et le bien-être des résidents, qui peuvent profiter de plusieurs espaces de convivialité : salon, salle de gym, piscine intérieure, coiffeur et restaurant. De nombreux services complémentaires sont proposés aux résidents : ménage, blanchisserie, restauration, activités quotidiennes. Pour leur confort un arrêt de bus en pied de résidence et plusieurs commodités se trouvent également à moins de 10 min à pied : commerces, La Poste, restaurants, cabinets médicaux.

Autres logements T2 du programme "LE DAMIER"

Disponibilité Prix Genre Pièces Surface Étage
Voir
Disponible
198 840€ Appt. T2 46m2 3ème