179 900€
Appt. au 1er
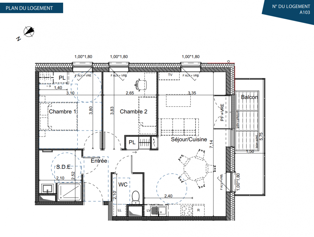
T3
60.65 m²
Sud
Fontaine-le-Comte (86240)
4ème trimestre 2027
01 81 80 39 10
Présentation du programme "JOUVENCE (SNC Jouvence)"
Offrez-vous un cadre de vie unique avec la résidence Jouvence, où confort, modernité et respect de l’environnement se rencontrent. Nichée à proximité immédiate d’un espace boisé, elle plonge ses habitants dans un environnement naturel apaisant et ressourçant.Les logements du T2 au T3, pensés pour optimiser les espaces, bénéficient de prestations de qualité et d’aménagements modernes réduisant l’empreinte carbone. Jardins partagés et aménagements paysagers favorisent la convivialité et les échanges entre résidents.Idéalement située à Fontaine-le-Comte, la résidence est proche des commerces, écoles et services, tout en offrant un accès rapide au centre-ville de Poitiers. Jouvence conjugue ainsi praticité, sérénité et qualité de vie, parfaite pour y vivre ou investir.Découvrir le programme : https://www.eden-promotion.fr/programmes-immobiliers/appartements-jouvence/