150 700€
Appt. au 3ème
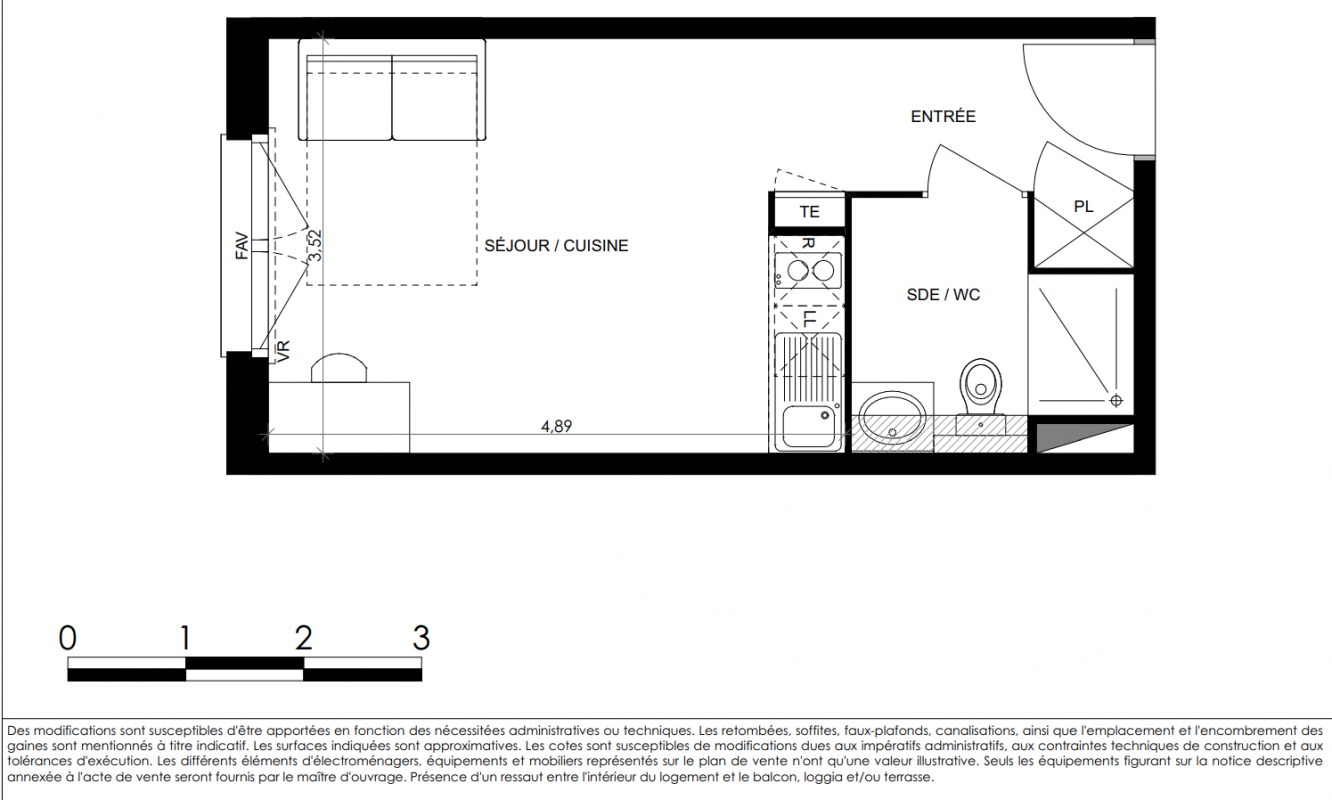
Studio
25.06 m²
Sud
Quint-Fonsegrives (31130)
3ème trimestre 2027
01 81 80 39 10
Présentation du programme "Vivre Ensemble"
Vous souhaitez y habiter ? Vérifiez votre éligibilité au PTZ avec nos équipes !Vous souhaitez le mettre en location ? Nous vous proposons de bénéficier du dispositif LLI (Logement Locatif Intermédiaire). Contactez nos équipes pour en savoir plus. Investissez à Quint-Fonsegrives, un emplacement stratégique aux portes de ToulouseCommune limitrophe de Toulouse, Quint-Fonsegrives profite directement du dynamisme de la métropole tout en conservant un cadre résidentiel paisible et verdoyant.À seulement quelques minutes du centre-ville toulousain, elle offre une accessibilité optimale pour les actifs.Une localisation privilégiée, recherchée par les jeunes actifs et les familles souhaitant allier proximité urbaine et qualité de vie.Connectée à plusieurs bassins d’emplois majeurs : Balma, Labège, Toulouse Aerospace. Un cadre de vie recherché entre nature, confort et dynamisme localAmbiance village, avec un centre-ville animé, des commerces de proximité, des marchés et des équipements publics modernes.Présence de nombreux espaces verts et d’un environnement naturel préservé, idéal pour les familles et les amateurs de plein air.Infrastructures sportives variées : padel, tennis, boulodrome, skatepark, stades et aires de jeux. Commodités et transportsExcellente accessibilité : Bus Linéo, lignes régulières, métro ligne A à 15 min et future ligne C à 11 min, accès direct au périphérique, pistes cyclables au pied de la résidence.Mobilité régionale facilitée : Gare Toulouse Matabiau et aérodrome de Lasbordes à proximité pour des déplacements aisés en train ou avion.Vie quotidienne pratique : Commerces, établissements scolaires, équipements sportifs, santé et loisirs accessibles à pied ou en quelques minutes en voiture. Focus prestations/résidenceArchitecture soignée et durable, alliant tradition locale et modernité, avec des appartements adaptés à tous les styles de vie, y compris au coliving et à l’accessibilité PMR.Confort et bien-être au quotidien, avec extérieurs privatifs (loggias ou terrasses), stationnement pour chaque logement et locaux vélos pour favoriser la mobilité douce.Espaces communs pensés pour Vivre Ensemble : salle de sport, salle d’étude, laverie, salon de convivialité et espaces verts pour un cadre serein et convivial. Le + du programmeConformité RE2020 et certification NF Habitat : un gage de qualité pour les investisseurs et une garantie de confort pour les occupants.
Autres logements Studio du programme "Vivre Ensemble"
| Disponibilité | Prix | No | Genre | Pièces | Surface | Étage | Disponibilité | Prix | ||
|---|---|---|---|---|---|---|---|---|---|---|
| Voir | Disponible | 147 700€ | F013 | Appt. | Studio | 24.42m2 | 0-RDC | Disponible | 147 700€ | Voir |
| Voir | Disponible | 150 700€ | F211 | Appt. | Studio | 25.06m2 | 2ème | Disponible | 150 700€ | Voir |
| Voir | Disponible | 150 700€ | F209 | Appt. | Studio | 25.06m2 | 2ème | Disponible | 150 700€ | Voir |