293 460€ (TVA 20%)
258 000€ (TVA 5.5%)
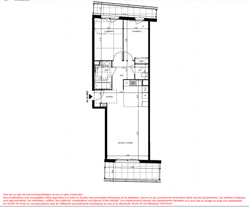
Appt. au 5ème
T3
64.7 m²
Sud
Montpellier (34000)
1er trimestre 2028
01 81 80 39 10
Présentation du programme "MILLESSENCE"
Depuis plusieurs années, Montpellier, 7ème ville de France embellit son cadre de vie et se dote d'un environnement verdoyant et durable. VINCI Immobilier a sélectionné une superbe adresse pour bâtir une résidence d’exception située sur l’emblématique et recherchée avenue du Mondial 98.
Au coeur du prestigieux quartier Port Marianne, entre l’Hôtel de Ville et Odysseum, MILLESSENCE vous offre une opportunité rare. Cette résidence aux courbes élégantes vous invite à vivre dans un cadre d’exception où chaque appartement s’ouvre sur un extérieur baigné de lumière. Votre logement bénéficie de prestations soignées et s’intègre dans un cadre de vie idéal : jardin méditerranéen en coeur d’îlot, tramway au pied de l’immeuble, commerces, clinique et écoles accessibles à pied. Une alliance parfaite entre qualité de vie, emplacement premium et accessibilité financière. Situé aux abords de la ligne 2 du tram et le long de la piste cyclable qui relie le Centre-Ville au Centre Commercial Odysseum, il sera facile de vous déplacer.
Ce projet compte 29 appartements en BRS (Bail Réel Solidaire) du 2 au 4 pièces avec parkings en sous-sol.
Le Bail Réel Solidaire (BRS) est un dispositif innovant mis en place par l’État permettant au plus grand nombre de devenir propriétaire de leur résidence principale. Le principe est simple; vous êtes propriétaire de votre logement et vous louez
le terrain sur lequel le bien est construit en versant une redevance à un Organisme Foncier Solidaire (OFS).
Aujourd'hui, la capitale languedocienne séduit par ses atouts naturels (soleil et plages), son aménagement urbain réfléchi, ses universités et sa vitalité économique !
Pour en savoir plus sur ce produit rare et les conditions du BRS, contactez-nous dès à présent !
Autres logements T3 du programme "MILLESSENCE"
| Disponibilité | Prix | No | Genre | Pièces | Surface | Étage | Disponibilité | Prix | ||
|---|---|---|---|---|---|---|---|---|---|---|
| Voir | Disponible | 241 137€ | B1-12 | Appt. | T3 | 64.7m2 | 1er | Disponible | 241 137€ | Voir |
| Voir | Disponible | 238 863€ | B1-13 | Appt. | T3 | 60.1m2 | 1er | Disponible | 238 863€ | Voir |
| Voir | Disponible | 241 137€ | B1-22 | Appt. | T3 | 64.7m2 | 2ème | Disponible | 241 137€ | Voir |
| Voir | Optionné | 238 863€ | B1-23 | Appt. | T3 | 60.1m2 | 2ème | Optionné Mais pas encore vendu 😉 | 238 863€ | Voir |
| Voir | Disponible | 241 137€ | B1-32 | Appt. | T3 | 64.7m2 | 3ème | Disponible | 241 137€ | Voir |
| Voir | Optionné | 241 137€ | B1-42 | Appt. | T3 | 64.7m2 | 4ème | Optionné Mais pas encore vendu 😉 | 241 137€ | Voir |
| Voir | Disponible | 293 460€ | B1-61 | Appt. | T3 | 64.7m2 | 6ème | Disponible | 293 460€ | Voir |