Prix
247 000€  (TVA 20%)
226 417€  (TVA 10%)
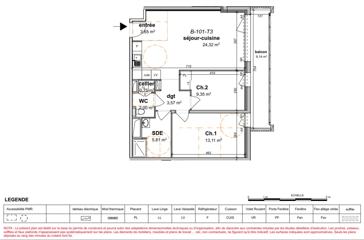
Type
Appt. au 1er
Pièces
T3
Surface
62.56 m²
Exposition
-
Ville
Angers (49000)
Livraison
4ème trimestre 2025
Informations
01 81 80 39 10

Présentation du programme "BoTerra"

La résidence BO TERRA fait la part belle à la mixité des usages avec ses 2 îlots qui accueillent chacun 42 et 26 appartements du studio au 4 pièces, une crèche de 350m² et des locaux dédiés à l'artisanat.
Les appartements bénéficient soit d'un balcon, d'une loggia, d'une terrasse ou d'un jardin privatif.
Cet ensemble immobilier a été pensé dans un cadre particulièrement verdoyant bénéficiant de potager partagé et d'un coeur d'îlot arboré.

Autres logements T3 du programme "BoTerra"

Disponibilité Prix Genre Pièces Surface Étage
Voir
Optionné
251 000€ Appt. T3 65.11m2 0-RDC
Voir
Disponible
253 000€ Appt. T3 66.09m2 0-RDC
DO NOT CLICK