Prix
214 000€
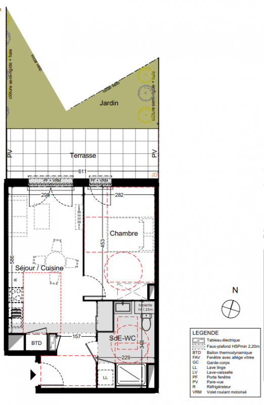
Type
Appt. au 0-RDC
Pièces
T2
Surface
43.12 m²
Exposition
Nord
Ville
Angers (49000)
Livraison
4ème trimestre 2027
Informations
01 81 80 39 10

Présentation du programme "LES TERRASSES DE LA MADELEINE"

Programme neuf Angers - 49000

Autres logements T2 du programme "LES TERRASSES DE LA MADELEINE"

Disponibilité Prix Genre Pièces Surface Étage
Voir
Disponible
218 000€ Appt. T2 43.52m2 1er
Voir
Disponible
214 000€ Appt. T2 42.31m2 1er
Voir
Disponible
212 000€ Appt. T2 46.18m2 2ème
Voir
Disponible
221 000€ Appt. T2 44.9m2 2ème
Voir
Disponible
245 000€ Appt. T2 45.05m2 3ème
Voir
Disponible
208 000€ Appt. T2 44.57m2 0-RDC
Voir
Disponible
180 102€ Appt. T2 46.18m2 1er
Voir
Disponible
169 065€ Appt. T2 43.35m2 0-RDC
DO NOT CLICK