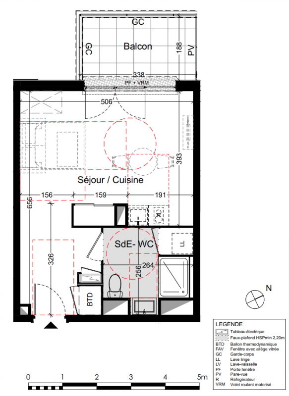
Prix
162 000€
Type
Appt. au 2ème
Pièces
Studio
Surface
31.44 m²
Exposition
Ouest
Ville
Angers (49000)
Livraison
4ème trimestre 2027
Informations
01 81 80 39 10

Présentation du programme "LES TERRASSES DE LA MADELEINE"

Programme neuf Angers - 49000

Autres logements Studio du programme "LES TERRASSES DE LA MADELEINE"

Disponibilité Prix Genre Pièces Surface Étage
Voir
Disponible
157 000€ Appt. Studio 31.44m2 1er
Voir
Disponible
162 000€ Appt. Studio 34.87m2 2ème
DO NOT CLICK