188 000€
Appt. au 0-RDC
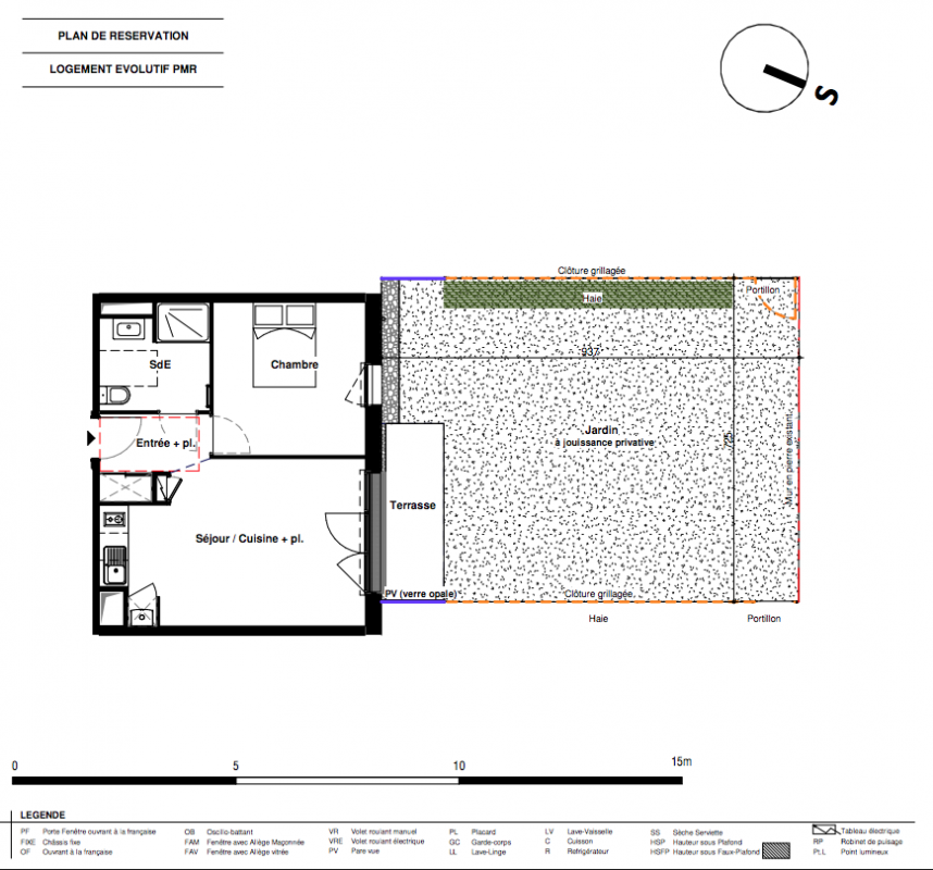
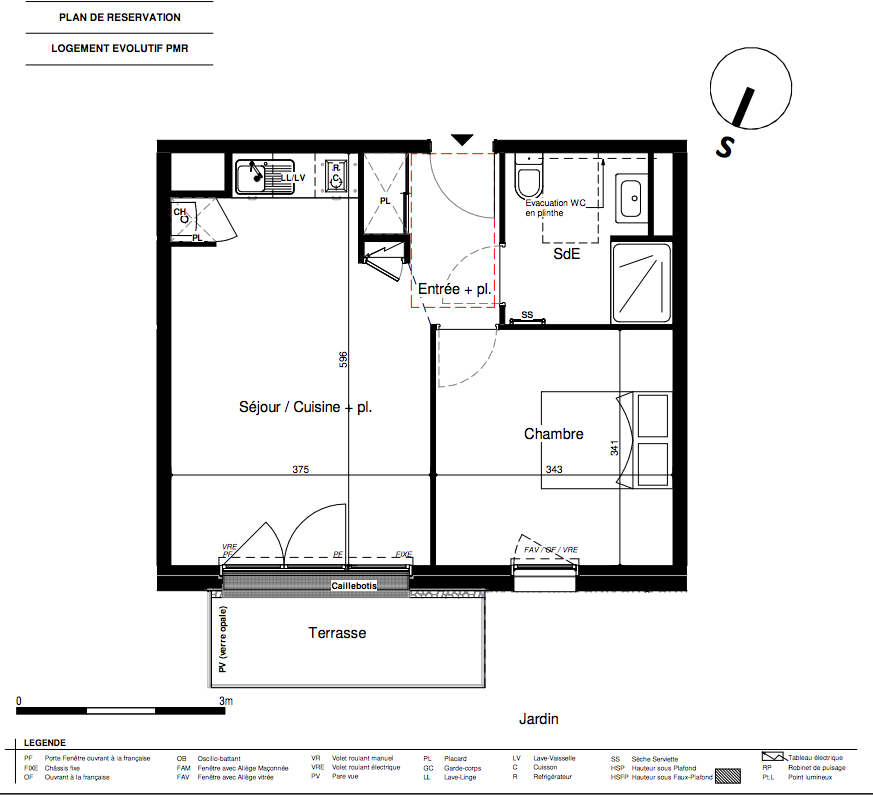
T2
41.05 m²
-
Avrillé (49240)
1er trimestre 2027
01 81 80 39 10
Présentation du programme "LES LONGERES D'ORGEMONT"
[ NOUVEAU À ANGERS ] Profitez de notre offre exclusive : Achetez maintenant, payez à la livraison*
À Angers, rue François Cevert, la nouvelle résidence Les Longères d’Orgemont s’implante dans le quartier résidentiel d’Orgemont, à proximité immédiate du Château d’Orgemont, dans un environnement calme, verdoyant et bien connecté.
La résidence bénéficie d’un cadre de vie équilibré, conjuguant quiétude résidentielle et vitalité angevine. Les commerces, services, établissements scolaires, équipements culturels et sportifs ainsi que les espaces naturels (bords de Maine, parcs urbains) sont accessibles en 5 à 10 minutes à pied ou à vélo. Les transports en commun du réseau Irigo, la gare TGV d’Angers Saint-Laud et les grands axes routiers (A11, A87) facilitent les déplacements au quotidien.
Inspirée du patrimoine local, l’architecture des Longères d’Orgemont revisite l’esprit des longères angevines dans une écriture contemporaine mêlant volumes à double pente, ardoise, bois et zinc.
La résidence se compose d'appartements du 2 au 3 pièces, organisés autour d’espaces verts généreux et d’une allée centrale favorisant les circulations douces. Chaque appartement bénéficie d’un espace extérieur (balcon ou jardin privatif en rez-de-chaussée), prolongeant les pièces de vie dans un cadre lumineux et paysager.
Pensés pour le confort au quotidien, les logements offrent de beaux volumes, une luminosité naturelle soignée et des prestations de qualité : ascenseur, stationnements couverts et aériens, locaux vélos, volets roulants électriques, contrôle d’accès, confort thermique et acoustique.
SPÉCIAL INVESTISSEURS – Profitez du nouveau Dispositif JEANBRUN : optimisez votre fiscalité et accélérez votre patrimoine.
Contactez dès maintenant nos conseillers Lamotte à ANGERS ou visitez notre site LAMOTTE.FR pour plus d'informations et pour profiter de notre offre exclusive.
* Voir conditions sur Vianova.fr
Autres logements T2 du programme "LES LONGERES D'ORGEMONT"
| Disponibilité | Prix | No | Genre | Pièces | Surface | Étage | Disponibilité | Prix | ||
|---|---|---|---|---|---|---|---|---|---|---|
| Voir | Disponible | 175 000€ | A003 | Appt. | T2 | 41.05m2 | 0-RDC | Disponible | 175 000€ | Voir |
| Voir | Disponible | 188 000€ | A005 | Appt. | T2 | 40.28m2 | 0-RDC | Disponible | 188 000€ | Voir |
| Voir | Disponible | 186 000€ | A007 | Appt. | T2 | 39.88m2 | 0-RDC | Disponible | 186 000€ | Voir |
| Voir | Disponible | 177 000€ | A104 | Appt. | T2 | 41.05m2 | 1er | Disponible | 177 000€ | Voir |
| Voir | Disponible | 187 000€ | A106 | Appt. | T2 | 40.28m2 | 1er | Disponible | 187 000€ | Voir |
| Voir | Disponible | 188 000€ | A107 | Appt. | T2 | 41.05m2 | 1er | Disponible | 188 000€ | Voir |
| Voir | Disponible | 186 000€ | A108 | Appt. | T2 | 39.95m2 | 1er | Disponible | 186 000€ | Voir |
| Voir | Disponible | 179 000€ | A205 | Appt. | T2 | 42.95m2 | 2ème | Disponible | 179 000€ | Voir |
| Voir | Disponible | 190 000€ | A206 | Appt. | T2 | 42.96m2 | 2ème | Disponible | 190 000€ | Voir |
| Voir | Disponible | 192 000€ | A207 | Appt. | T2 | 44.12m2 | 2ème | Disponible | 192 000€ | Voir |
| Voir | Disponible | 193 000€ | A209 | Appt. | T2 | 44.2m2 | 2ème | Disponible | 193 000€ | Voir |
| Voir | Disponible | 189 000€ | A212 | Appt. | T2 | 42m2 | 2ème | Disponible | 189 000€ | Voir |

